Woning Zorgvlietstraat 509 Breda

Zorgvlietstraat 509, 4834NH Breda

Ontvang updates voor Ypelaar

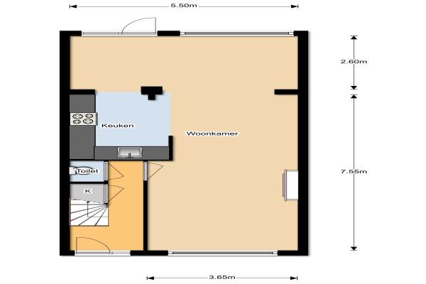
Het adres van deze woning uit 1965 is Zorgvlietstraat 509 te Breda. Het pand heeft een oppervlakte van 130m² en een perceeloppervlakte van 173m² en heeft 5 kamers kamers waarvan 4 slaapkamers. De geschatte waarde van deze woning is € 299.000.

Bekijk alle woningen in Ypelaar

Gegevens van Eengezinswoning, tussenwoning

Bouwjaar
1965
Geschatte waarde
€ 299.000
Oppervlakte
130 m2
Inhoud
390 m3
Aantal kamers
5 kamers
Slaapkamers
4
Badkamers
1 badkamer en 2 aparte toiletten
Soort bouw
Bestaande bouw
Eigendomssituatie
Volle eigendom
Ligging
Aan rustige weg en in woonwijk
Tuin
Achtertuin en voortuin
Achtertuin
56 m² (10m diep en 5,6m breed)

Voorzieningen in de buurt

Boodschappen0,5 km
Grote supermarkt0,6 km
Cafetaria0,5 km
Restaurant0,6 km
Huisarts0,5 km
Ziekenhuis1,8 km
Kinderdagverblijf0,4 km
BSO0,5 km
Alle voorzieningen in Ypelaar

Binnenkijken bij Zorgvlietstraat 509 te Breda

Meer meldingen in deze omgeving

Binnenkijken bij
Woensdag 24-12-2025
Walenburgstraat 67, 4834RK Breda

Nieuw bedrijf
December 2025
Rijnauwenstraat 106A, 4834LG Breda

Nieuw bedrijf
December 2025
Wolfraadstraat 21, 4834JA Breda

Binnenkijken bij
Zaterdag 20-12-2025
Schaffelaarstraat 131, 4834PK Breda

112 melding
Donderdag 11-12-2025 om 18:37
Loevesteinstraat, 4834ED Breda

112 melding
Donderdag 11-12-2025 om 18:37
Loevesteinstraat, 4834ED Breda

112 melding
Donderdag 11-12-2025 om 18:37
Loevesteinstraat, 4834ED Breda

112 melding
Donderdag 11-12-2025 om 18:37
Loevesteinstraat, 4834ED Breda

Direct een e-mail ontvangen bij nieuwe meldingen in deze regio?

Meld je dan GRATIS aan voor de Oozo Alert service voor Ypelaar

Instellen

Meer nieuws in Ypelaar

Weten hoe eenvoudig het is om af te vallen? Zonder pillen en smeersels en zonder je in het zweet te werken!
Kijk op eenvoudig-afvallen.nl

© 2012 - 2025 OOZO.nl - info@oozo.nl - Gegevens verwijderen? | Disclaimer | Privacy statement