Woning Schaffelaarstraat 118 Breda

Schaffelaarstraat 118, 4834PM Breda

Ontvang updates voor Ypelaar

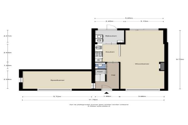
Het adres van deze woning uit 1965 is Schaffelaarstraat 118 te Breda. Het pand heeft een oppervlakte van 142m² en een perceeloppervlakte van 286m² en heeft 6 kamers kamers waarvan 4 slaapkamers. De geschatte waarde van deze woning is € 329.000.

Bekijk alle woningen in Ypelaar

Gegevens van Eengezinswoning, hoekwoning

Bouwjaar
1965
Geschatte waarde
€ 329.000
Oppervlakte
142 m2
Inhoud
510 m3
Aantal kamers
6 kamers
Slaapkamers
4
Badkamers
1 badkamer en 2 aparte toiletten
Soort bouw
Bestaande bouw
Eigendomssituatie
Volle eigendom
Ligging
Aan rustige weg en in woonwijk
Tuin
Achtertuin, voortuin en zijtuin
Achtertuin
68 m² (12m diep en 5,65m breed)

Voorzieningen in de buurt

Boodschappen0,5 km
Grote supermarkt0,6 km
Cafetaria0,5 km
Restaurant0,6 km
Huisarts0,5 km
Ziekenhuis1,8 km
Kinderdagverblijf0,4 km
BSO0,5 km
Alle voorzieningen in Ypelaar

Binnenkijken bij Schaffelaarstraat 118 te Breda

Meer meldingen in deze omgeving

Nieuw bedrijf
December 2025
Wolfraadstraat 21, 4834JA Breda

112 melding
Donderdag 11-12-2025 om 18:37
Loevesteinstraat, 4834ED Breda

112 melding
Donderdag 11-12-2025 om 18:37
Loevesteinstraat, 4834ED Breda

112 melding
Donderdag 11-12-2025 om 18:37
Loevesteinstraat, 4834ED Breda

112 melding
Donderdag 11-12-2025 om 18:37
Loevesteinstraat, 4834ED Breda

112 melding
Donderdag 11-12-2025 om 18:17
Loevesteinstraat, 4834ED Breda

112 melding
Donderdag 11-12-2025 om 17:28
Mathenessestraat, Breda

Nieuw bedrijf
December 2025
Heeckerenstraat 31, 4834LR Breda

Direct een e-mail ontvangen bij nieuwe meldingen in deze regio?

Meld je dan GRATIS aan voor de Oozo Alert service voor Ypelaar

Instellen

Meer nieuws in Ypelaar

Weten hoe eenvoudig het is om af te vallen? Zonder pillen en smeersels en zonder je in het zweet te werken!
Kijk op eenvoudig-afvallen.nl

© 2012 - 2025 OOZO.nl - info@oozo.nl - Gegevens verwijderen? | Disclaimer | Privacy statement