Woning Assumburgstraat 11 Breda

Assumburgstraat 11, 4834KP Breda

Ontvang updates voor Ypelaar

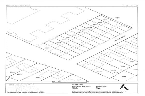
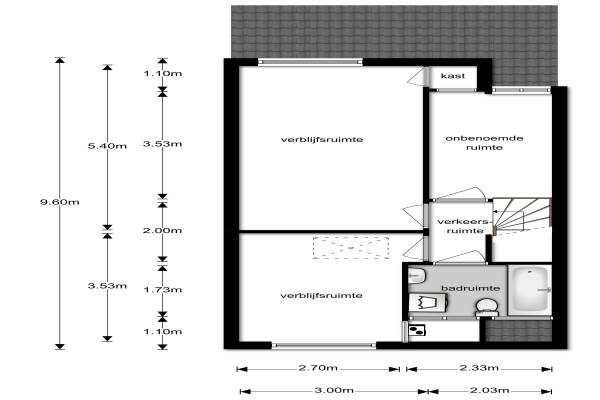
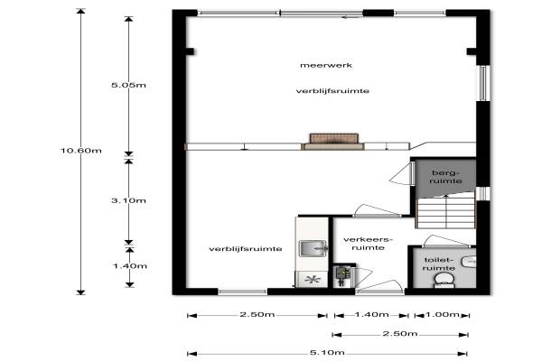
Het adres van deze woning uit 1995 is Assumburgstraat 11 te Breda. Het pand heeft een oppervlakte van 98m² en een perceeloppervlakte van 167m² en heeft 4 kamers kamers waarvan 3 slaapkamers. De geschatte waarde van deze woning is € 324.500.

Bekijk alle woningen in Ypelaar

Gegevens van Eengezinswoning, 2-onder-1-kapwoning

Bouwjaar
1995
Geschatte waarde
€ 324.500
Oppervlakte
98 m2
Inhoud
380 m3
Aantal kamers
4 kamers
Slaapkamers
3
Badkamers
1 badkamer en 1 apart toilet
Soort bouw
Bestaande bouw
Eigendomssituatie
Volle eigendom
Ligging
In woonwijk
Tuin
Achtertuin en voortuin
Achtertuin
54 m² (9m diep en 6m breed)

Voorzieningen in de buurt

Boodschappen0,5 km
Grote supermarkt0,6 km
Cafetaria0,5 km
Restaurant0,6 km
Huisarts0,5 km
Ziekenhuis1,8 km
Kinderdagverblijf0,4 km
BSO0,5 km
Alle voorzieningen in Ypelaar

Binnenkijken bij Assumburgstraat 11 te Breda

Meer meldingen in deze omgeving

Nieuw bedrijf
Januari 2026
Rijnauwenstraat 106A, 4834LG Breda

112 melding
Woensdag 31-12-2025 om 19:32
Zorgvlietstraat, Breda

Binnenkijken bij
Woensdag 24-12-2025
Walenburgstraat 67, 4834RK Breda

Nieuw bedrijf
December 2025
Wolfraadstraat 21, 4834JA Breda

Binnenkijken bij
Zaterdag 20-12-2025
Schaffelaarstraat 131, 4834PK Breda

112 melding
Donderdag 11-12-2025 om 18:37
Loevesteinstraat, 4834ED Breda

112 melding
Donderdag 11-12-2025 om 18:37
Loevesteinstraat, 4834ED Breda

112 melding
Donderdag 11-12-2025 om 18:37
Loevesteinstraat, 4834ED Breda

Direct een e-mail ontvangen bij nieuwe meldingen in deze regio?

Meld je dan GRATIS aan voor de Oozo Alert service voor Ypelaar

Instellen

Meer nieuws in Ypelaar

Weten hoe eenvoudig het is om af te vallen? Zonder pillen en smeersels en zonder je in het zweet te werken!
Kijk op eenvoudig-afvallen.nl

© 2012 - 2026 OOZO.nl - info@oozo.nl - Gegevens verwijderen? | Disclaimer | Privacy statement