Woning Wisselinkweg 5 Zelhem

Wisselinkweg 5, 7021MC Zelhem

Ontvang updates voor Verspreide huizen Zelhem

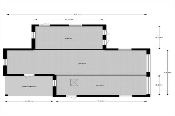
Het adres van deze woning uit 1890 is Wisselinkweg 5 te Zelhem. Het pand heeft een oppervlakte van 249m² en een perceeloppervlakte van 2550m² en heeft 7 kamers kamers waarvan 4 slaapkamers. De geschatte waarde van deze woning is € 575.000.

Bekijk alle woningen in Verspreide huizen Zelhem

Gegevens van Woonboerderij, vrijstaande woning

Bouwjaar
1890
Geschatte waarde
€ 575.000
Oppervlakte
249 m2
Inhoud
921 m3
Aantal kamers
7 kamers
Slaapkamers
4
Badkamers
2 badkamers en 1 apart toilet
Soort bouw
Bestaande bouw
Eigendomssituatie
Volle eigendom
Ligging
Vrij uitzicht, aan rustige weg, open ligging en buiten bebouwde kom
Tuin
Tuin rondom

Voorzieningen in de buurt

Boodschappen2,4 km
Grote supermarkt2,3 km
Cafetaria2,1 km
Restaurant2,0 km
Huisarts2,6 km
Ziekenhuis7,1 km
Kinderdagverblijf2,0 km
BSO1,8 km
Alle voorzieningen in Verspreide huizen Zelhem

Binnenkijken bij Wisselinkweg 5 te Zelhem

Meer meldingen in deze omgeving

Binnenkijken bij
Zondag 28-9-2025
Ruurloseweg 29, 7021HB Zelhem

Binnenkijken bij
Vrijdag 19-9-2025
Wolfersveenweg 5, 7021HH Zelhem

Nieuw bedrijf
September 2025
Aaltenseweg 3, 7021MX Zelhem

Nieuw bedrijf
September 2025
Nijmansedijk 6a, 7021JB Zelhem

Onroerend goed
Dinsdag 2-9-2025
Wolfersveenweg, 7021HH Zelhem

Nieuw bedrijf
September 2025
Aaltenseweg 2, 7021MX Zelhem

112 melding
Donderdag 28-8-2025 om 11:18
Terborgseweg, Zelhem

112 melding
Donderdag 28-8-2025 om 11:18
Terborgseweg, Zelhem

Direct een e-mail ontvangen bij nieuwe meldingen in deze regio?

Meld je dan GRATIS aan voor de Oozo Alert service voor Verspreide huizen Zelhem

Instellen

Meer nieuws in Verspreide huizen Zelhem

Weten hoe eenvoudig het is om af te vallen? Zonder pillen en smeersels en zonder je in het zweet te werken!
Kijk op eenvoudig-afvallen.nl

© 2012 - 2025 OOZO.nl - info@oozo.nl - Gegevens verwijderen? | Disclaimer | Privacy statement