Woning Zadkinerade 17 Capelle aan den IJssel

Zadkinerade 17, 2907MB Capelle aan den IJssel

Ontvang updates voor Kunstenaarsbuurt

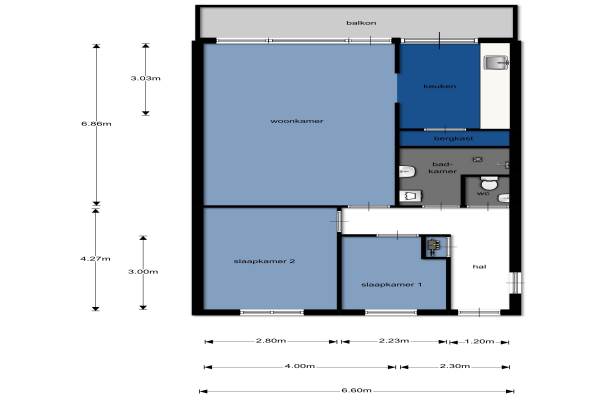
Het adres van deze woning uit 1983 is Zadkinerade 17 te Capelle aan den IJssel. Het pand heeft een oppervlakte van 74m² en heeft 3 kamers kamers waarvan 2 slaapkamers. De geschatte waarde van deze woning is € 150.000.

Bekijk alle woningen in Kunstenaarsbuurt

Gegevens van Galerijflat (appartement)

Bouwjaar
1983
Geschatte waarde
€ 150.000
Oppervlakte
74 m2
Inhoud
225 m3
Aantal kamers
3 kamers
Slaapkamers
2
Badkamers
1 badkamer en 1 apart toilet
Soort bouw
Bestaande bouw
Eigendomssituatie
Volle eigendom
Ligging
In woonwijk

Voorzieningen in de buurt

Boodschappen0,3 km
Grote supermarkt0,3 km
Cafetaria0,2 km
Restaurant0,2 km
Huisarts0,5 km
Ziekenhuis4,2 km
Kinderdagverblijf0,3 km
BSO0,3 km
Alle voorzieningen in Kunstenaarsbuurt

Binnenkijken bij Zadkinerade 17 te Capelle aan den IJssel

Meer meldingen in deze omgeving

112 melding
Zaterdag 15-11-2025 om 12:37
Henri Laurensrade, 2907MN Capelle aan den IJssel

Binnenkijken bij
Vrijdag 14-11-2025
Auguste Renoirrade 6, 2907MR Capelle aan den IJssel

112 melding
Maandag 10-11-2025 om 11:04
Mari Andriessenrade, 2907MA Capelle aan den IJssel

112 melding
Zondag 9-11-2025 om 13:34
Fidelio, 2907KE Capelle aan den IJssel

112 melding
Zaterdag 8-11-2025 om 16:50
Stationsplein, 2907MJ Capelle aan den IJssel

112 melding
Donderdag 6-11-2025 om 09:39
Fidelio, 2907KE Capelle aan den IJssel

112 melding
Woensdag 5-11-2025 om 16:17
Picassopassage, 2907ME Capelle aan den IJssel

112 melding
Woensdag 5-11-2025 om 16:08
Picassopassage, 2907ME Capelle aan den IJssel

Direct een e-mail ontvangen bij nieuwe meldingen in deze regio?

Meld je dan GRATIS aan voor de Oozo Alert service voor Kunstenaarsbuurt

Instellen

Meer nieuws in Kunstenaarsbuurt

Weten hoe eenvoudig het is om af te vallen? Zonder pillen en smeersels en zonder je in het zweet te werken!
Kijk op eenvoudig-afvallen.nl

© 2012 - 2025 OOZO.nl - info@oozo.nl - Gegevens verwijderen? | Disclaimer | Privacy statement