Woning Oranjelaan 45 Castricum

Oranjelaan 45, 1901TW Castricum

Ontvang updates voor Kooiweg

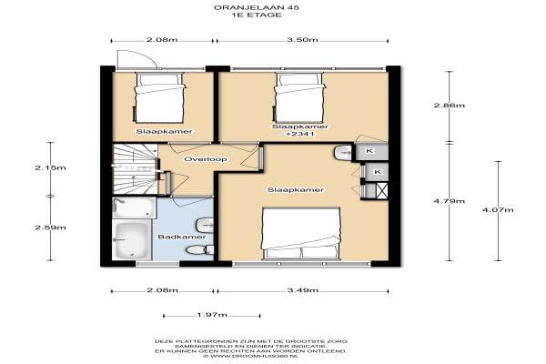
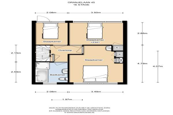
Het adres van deze woning uit 1965 is Oranjelaan 45 te Castricum. Het pand heeft een oppervlakte van 120m² en een perceeloppervlakte van 176m² en heeft 5 kamers kamers waarvan 4 slaapkamers. De geschatte waarde van deze woning is € 269.000.

Bekijk alle woningen in Kooiweg

Gegevens van Eengezinswoning, tussenwoning

Bouwjaar
1965
Geschatte waarde
€ 269.000
Oppervlakte
120 m2
Inhoud
375 m3
Aantal kamers
5 kamers
Slaapkamers
4
Badkamers
1 badkamer en 1 apart toilet
Soort bouw
Bestaande bouw
Eigendomssituatie
Volle eigendom
Ligging
In woonwijk en vrij uitzicht
Tuin
Achtertuin en voortuin
Achtertuin
84 m² (13,7m diep en 6,1m breed)

Voorzieningen in de buurt

Boodschappen0,9 km
Grote supermarkt0,5 km
Cafetaria0,5 km
Restaurant0,9 km
Huisarts0,5 km
Ziekenhuis3,6 km
Kinderdagverblijf0,5 km
BSO0,5 km
Alle voorzieningen in Kooiweg

Binnenkijken bij Oranjelaan 45 te Castricum

Meer meldingen in deze omgeving

Nieuw bedrijf
November 2025
Brakersweg 15, 1901XW Castricum

112 melding
Vrijdag 14-11-2025 om 09:09
Rossinistraat, 1901XJ Castricum

Nieuw bedrijf
November 2025
Brakersweg 15, 1901XW Castricum

112 melding
Donderdag 13-11-2025 om 04:22
Offenbachstraat, Castricum

112 melding
Dinsdag 11-11-2025 om 15:27
Chopinstraat, 1901VG Castricum

Nieuw bedrijf
November 2025
Piet Heinlaan 5, 1901WL Castricum

112 melding
Maandag 10-11-2025 om 08:28
Tulpenveld, 1901LA Castricum

112 melding
Maandag 10-11-2025 om 08:27
Rossinistraat, 1901XJ Castricum

Direct een e-mail ontvangen bij nieuwe meldingen in deze regio?

Meld je dan GRATIS aan voor de Oozo Alert service voor Kooiweg

Instellen

Meer nieuws in Kooiweg

Weten hoe eenvoudig het is om af te vallen? Zonder pillen en smeersels en zonder je in het zweet te werken!
Kijk op eenvoudig-afvallen.nl

© 2012 - 2025 OOZO.nl - info@oozo.nl - Gegevens verwijderen? | Disclaimer | Privacy statement