Woning Theresiastraat 12 Delft

Theresiastraat 12, 2628GP Delft

Ontvang updates voor Wippolder-Noord

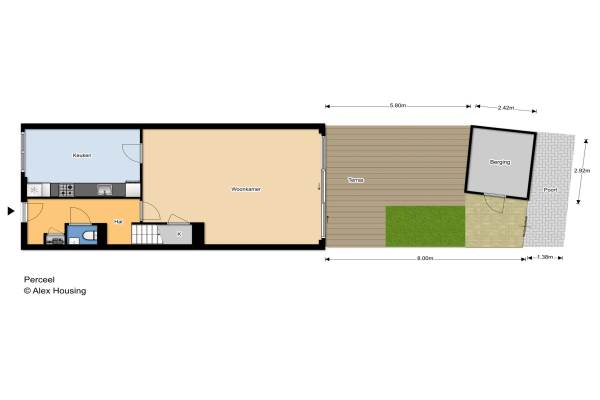
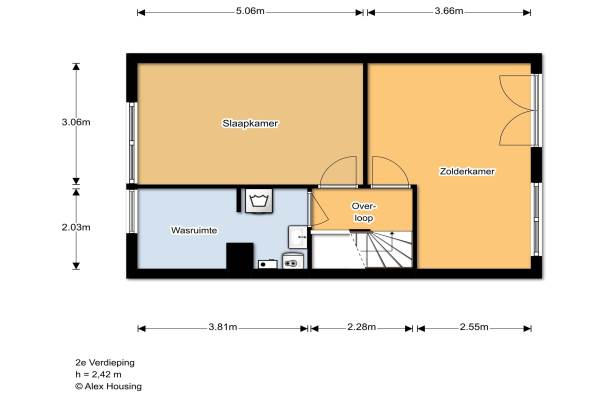
Het adres van deze woning uit 1999 is Theresiastraat 12 te Delft. Het pand heeft een oppervlakte van 158m² en een perceeloppervlakte van 122m² en heeft 6 kamers kamers waarvan 5 slaapkamers. De geschatte waarde van deze woning is € 395.000.

Bekijk alle woningen in Wippolder-Noord

Gegevens van Eengezinswoning, tussenwoning

Bouwjaar
1999
Geschatte waarde
€ 395.000
Oppervlakte
158 m2
Inhoud
490 m3
Aantal kamers
6 kamers
Slaapkamers
5
Badkamers
2 aparte toiletten
Soort bouw
Bestaande bouw
Eigendomssituatie
Volle eigendom
Ligging
In woonwijk
Tuin
Achtertuin
Achtertuin
43 m² (8m diep en 5,4m breed)

Voorzieningen in de buurt

Boodschappen0,2 km
Grote supermarkt0,3 km
Cafetaria0,2 km
Restaurant0,2 km
Huisarts0,3 km
Ziekenhuis3,1 km
Kinderdagverblijf0,2 km
BSO0,2 km
Alle voorzieningen in Wippolder-Noord

Binnenkijken bij Theresiastraat 12 te Delft

Meer meldingen in deze omgeving

Nieuw bedrijf
Oktober 2025
Frederik Hendrikstraat 69, 2628SZ Delft

Binnenkijken bij
Woensdag 29-10-2025
Julianalaan 2B, 2628BH Delft

Binnenkijken bij
Woensdag 29-10-2025
Delfgauwseweg 335, 2628ET Delft

Binnenkijken bij
Woensdag 29-10-2025
Frederik Hendrikstraat 38, 2628TC Delft

Binnenkijken bij
Woensdag 29-10-2025
Delfgauwseweg 135, 2628EL Delft

Nieuw bedrijf
Oktober 2025
Delfgauwseweg 239, 2628EP Delft

Nieuw bedrijf
Oktober 2025
Frederik Hendrikstraat 59, 2628SZ Delft

112 melding
Zaterdag 18-10-2025 om 10:37
Simonsstraat, Delft

Direct een e-mail ontvangen bij nieuwe meldingen in deze regio?

Meld je dan GRATIS aan voor de Oozo Alert service voor Wippolder-Noord

Instellen

Meer nieuws in Wippolder-Noord

Weten hoe eenvoudig het is om af te vallen? Zonder pillen en smeersels en zonder je in het zweet te werken!
Kijk op eenvoudig-afvallen.nl

© 2012 - 2025 OOZO.nl - info@oozo.nl - Gegevens verwijderen? | Disclaimer | Privacy statement