Woning Ooievaarstraat 121 Den Helder

Ooievaarstraat 121, 1781VM Den Helder

Ontvang updates voor Vogelbuurt

Het adres van deze woning uit 1933 is Ooievaarstraat 121 te Den Helder. Het pand heeft een oppervlakte van 124m² en een perceeloppervlakte van 166m² en heeft 4 kamers kamers waarvan 3 slaapkamers. De geschatte waarde van deze woning is € 198.500.

Bekijk alle woningen in Vogelbuurt

Gegevens van Eengezinswoning, tussenwoning

Bouwjaar
1933
Geschatte waarde
€ 198.500
Oppervlakte
124 m2
Inhoud
413 m3
Aantal kamers
4 kamers
Slaapkamers
3
Soort bouw
Bestaande bouw
Eigendomssituatie
Volle eigendom
Ligging
In woonwijk
Tuin
Achtertuin en voortuin
Achtertuin
80 m² (16m diep en 5m breed)

Voorzieningen in de buurt

Boodschappen0,3 km
Grote supermarkt0,4 km
Cafetaria0,3 km
Restaurant0,6 km
Huisarts0,3 km
Ziekenhuis2,1 km
Kinderdagverblijf0,2 km
BSO0,2 km
Alle voorzieningen in Vogelbuurt

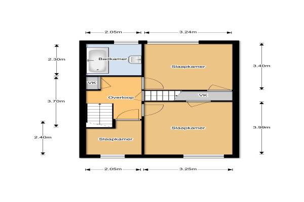
Binnenkijken bij Ooievaarstraat 121 te Den Helder

Meer meldingen in deze omgeving

112 melding
Zondag 5-4-2026 om 11:50
Burgemeester Houwingsingel, 1781XE Den Helder

112 melding
Vrijdag 3-4-2026 om 16:44
Sperwerstraat, Den Helder

112 melding
Woensdag 1-4-2026 om 14:10
Meeuwenstraat, 1781XA Den Helder

112 melding
Woensdag 1-4-2026 om 14:10
Meeuwenstraat, 1781XA Den Helder

112 melding
Maandag 30-3-2026 om 14:50
Ooievaarstraat, 1781VS Den Helder

112 melding
Maandag 30-3-2026 om 14:50
Ooievaarstraat, 1781VS Den Helder

112 melding
Maandag 30-3-2026 om 14:50
Ooievaarstraat, 1781VS Den Helder

112 melding
Maandag 30-3-2026 om 09:19
Burgemeester Houwingsingel, Den Helder

Direct een e-mail ontvangen bij nieuwe meldingen in deze regio?

Meld je dan GRATIS aan voor de Oozo Alert service voor Vogelbuurt

Instellen

Meer nieuws in Vogelbuurt

Weten hoe eenvoudig het is om af te vallen? Zonder pillen en smeersels en zonder je in het zweet te werken!
Kijk op eenvoudig-afvallen.nl

© 2012 - 2026 OOZO.nl - info@oozo.nl - Gegevens verwijderen? | Disclaimer | Privacy statement