Woning Wouter van Troostwijkstraat 2 Deventer

Wouter van Troostwijkstraat 2, 7424DS Deventer

Ontvang updates voor Het Fetlaer en Spijkvoorder Enk

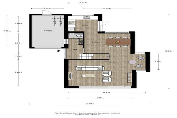
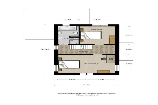
Het adres van deze woning uit 2007 is Wouter van Troostwijkstraat 2 te Deventer. Het pand heeft een oppervlakte van 147m² en een perceeloppervlakte van 466m² en heeft 4 kamers kamers waarvan 2 slaapkamers. De geschatte waarde van deze woning is € 349.000.

Bekijk alle woningen in Het Fetlaer en Spijkvoorder Enk

Gegevens van Herenhuis, vrijstaande woning

Bouwjaar
2007
Geschatte waarde
€ 349.000
Oppervlakte
147 m2
Inhoud
615 m3
Aantal kamers
4 kamers
Slaapkamers
2
Badkamers
1 badkamer
Soort bouw
Bestaande bouw
Eigendomssituatie
Volle eigendom
Ligging
In woonwijk
Tuin
Tuin rondom

Voorzieningen in de buurt

Boodschappen1,1 km
Grote supermarkt1,1 km
Cafetaria1,1 km
Restaurant1,1 km
Huisarts1,7 km
Ziekenhuis2,3 km
Kinderdagverblijf0,3 km
BSO0,5 km
Alle voorzieningen in Het Fetlaer en Spijkvoorder Enk

Binnenkijken bij Wouter van Troostwijkstraat 2 te Deventer

Meer meldingen in deze omgeving

Nieuw bedrijf
December 2025
Wouter van Troostwijkstraat 18, 7424DS Deventer

Nieuw bedrijf
December 2025
Van der Willigenstraat 9, 7424GV Deventer

Binnenkijken bij
Dinsdag 2-12-2025
Ary Schefferstraat 42, 7424DR Deventer

Binnenkijken bij
Vrijdag 21-11-2025
Charles Rochussenstraat 23, 7424GJ Deventer

Nieuw bedrijf
November 2025
Leonard Springerlaan 336, 7424DE Deventer

Binnenkijken bij
Zondag 19-10-2025
Van der Willigenstraat 9, 7424GV Deventer

Binnenkijken bij
Zondag 19-10-2025
Jozef Israëlsstraat 8, 7424EP Deventer

Nieuw bedrijf
Oktober 2025
Hoogeveenstraat 11, 7424GR Deventer

Direct een e-mail ontvangen bij nieuwe meldingen in deze regio?

Meld je dan GRATIS aan voor de Oozo Alert service voor Het Fetlaer en Spijkvoorder Enk

Instellen

Meer nieuws in Het Fetlaer en Spijkvoorder Enk

Weten hoe eenvoudig het is om af te vallen? Zonder pillen en smeersels en zonder je in het zweet te werken!
Kijk op eenvoudig-afvallen.nl

© 2012 - 2025 OOZO.nl - info@oozo.nl - Gegevens verwijderen? | Disclaimer | Privacy statement