Woning Vincent van Goghstraat 52 Deventer

Vincent van Goghstraat 52, 7424EL Deventer

Ontvang updates voor Het Fetlaer en Spijkvoorder Enk

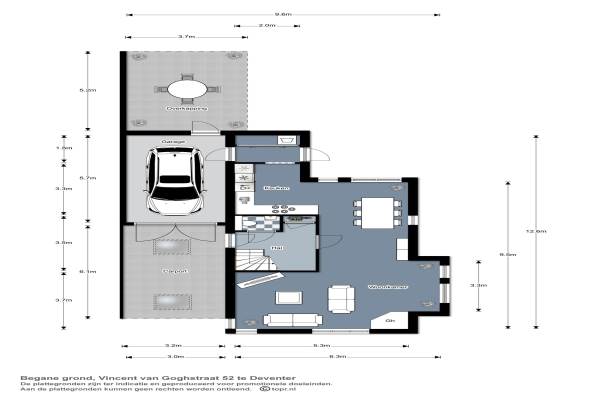
Het adres van deze woning uit 2008 is Vincent van Goghstraat 52 te Deventer. Het pand heeft een oppervlakte van 110m² en een perceeloppervlakte van 269m² en heeft 4 kamers kamers waarvan 3 slaapkamers. De geschatte waarde van deze woning is € 357.500.

Bekijk alle woningen in Het Fetlaer en Spijkvoorder Enk

Gegevens van Eengezinswoning, geschakelde woning

Bouwjaar
2008
Geschatte waarde
€ 357.500
Oppervlakte
110 m2
Inhoud
549 m3
Aantal kamers
4 kamers
Slaapkamers
3
Badkamers
1 apart toilet
Soort bouw
Bestaande bouw
Eigendomssituatie
Volle eigendom
Ligging
Aan rustige weg, in woonwijk en vrij uitzicht
Tuin
Achtertuin en voortuin
Achtertuin
96 m² (8m diep en 12m breed)

Voorzieningen in de buurt

Boodschappen1,1 km
Grote supermarkt1,1 km
Cafetaria1,1 km
Restaurant1,1 km
Huisarts1,7 km
Ziekenhuis2,3 km
Kinderdagverblijf0,3 km
BSO0,5 km
Alle voorzieningen in Het Fetlaer en Spijkvoorder Enk

Binnenkijken bij Vincent van Goghstraat 52 te Deventer

Meer meldingen in deze omgeving

Binnenkijken bij
Vrijdag 28-11-2025
Ary Schefferstraat 42, 7424DR Deventer

Nieuw bedrijf
November 2025
Van der Willigenstraat 9, 7424GV Deventer

Binnenkijken bij
Vrijdag 21-11-2025
Charles Rochussenstraat 23, 7424GJ Deventer

Nieuw bedrijf
November 2025
Leonard Springerlaan 336, 7424DE Deventer

Binnenkijken bij
Zondag 19-10-2025
Van der Willigenstraat 9, 7424GV Deventer

Binnenkijken bij
Zondag 19-10-2025
Jozef Israëlsstraat 8, 7424EP Deventer

Nieuw bedrijf
Oktober 2025
Hoogeveenstraat 11, 7424GR Deventer

Nieuw bedrijf
Oktober 2025
Hoogeveenstraat 19, 7424GR Deventer

Direct een e-mail ontvangen bij nieuwe meldingen in deze regio?

Meld je dan GRATIS aan voor de Oozo Alert service voor Het Fetlaer en Spijkvoorder Enk

Instellen

Meer nieuws in Het Fetlaer en Spijkvoorder Enk

Weten hoe eenvoudig het is om af te vallen? Zonder pillen en smeersels en zonder je in het zweet te werken!
Kijk op eenvoudig-afvallen.nl

© 2012 - 2025 OOZO.nl - info@oozo.nl - Gegevens verwijderen? | Disclaimer | Privacy statement