Woning Somervaart 107 Deventer

Somervaart 107, 7421HW Deventer

Ontvang updates voor Swormink

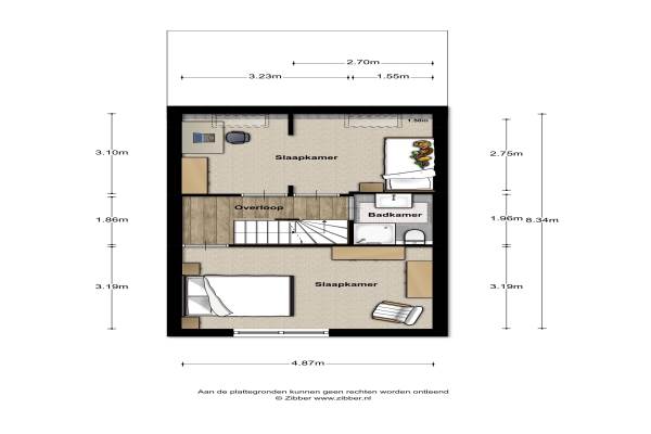
Het adres van deze woning uit 1995 is Somervaart 107 te Deventer. Het pand heeft een oppervlakte van 93m² en een perceeloppervlakte van 168m² en heeft 4 kamers kamers waarvan 3 slaapkamers. De geschatte waarde van deze woning is € 207.500.

Bekijk alle woningen in Swormink

Gegevens van Eengezinswoning, tussenwoning

Bouwjaar
1995
Geschatte waarde
€ 207.500
Oppervlakte
93 m2
Inhoud
384 m3
Aantal kamers
4 kamers
Slaapkamers
3
Badkamers
1 badkamer en 1 apart toilet
Soort bouw
Bestaande bouw
Eigendomssituatie
Volle eigendom
Ligging
Aan rustige weg, in woonwijk en vrij uitzicht
Tuin
Achtertuin en voortuin
Achtertuin
96 m² (17,5m diep en 5,5m breed)

Voorzieningen in de buurt

Boodschappen1,3 km
Grote supermarkt1,5 km
Cafetaria1,3 km
Restaurant1,3 km
Huisarts1,5 km
Ziekenhuis4,7 km
Kinderdagverblijf0,3 km
BSO0,3 km
Alle voorzieningen in Swormink

Binnenkijken bij Somervaart 107 te Deventer

Meer meldingen in deze omgeving

112 melding
Vrijdag 31-10-2025 om 06:09
Mina Krusemanlaan, Deventer

Faillissement
Woensdag 8-10-2025
Liesbeth den Uylstraat 2, 7421HB Deventer

Binnenkijken bij
Donderdag 2-10-2025
Joke Smitstraat 50, 7421HM Deventer

Binnenkijken bij
Vrijdag 19-9-2025
Wilhelmina Druckerstraat 51, 7421HS Deventer

Nieuw bedrijf
September 2025
Anna Reynvaanstraat 18, 7421LX Deventer

112 melding
Dinsdag 9-9-2025 om 00:31
Corrie Tendeloostraat, Deventer

112 melding
Dinsdag 9-9-2025 om 00:31
Corrie Tendeloostraat, Deventer

112 melding
Maandag 8-9-2025 om 23:33
Corrie Tendeloostraat, Deventer

Direct een e-mail ontvangen bij nieuwe meldingen in deze regio?

Meld je dan GRATIS aan voor de Oozo Alert service voor Swormink

Instellen

Meer nieuws in Swormink

Weten hoe eenvoudig het is om af te vallen? Zonder pillen en smeersels en zonder je in het zweet te werken!
Kijk op eenvoudig-afvallen.nl

© 2012 - 2025 OOZO.nl - info@oozo.nl - Gegevens verwijderen? | Disclaimer | Privacy statement