Woning Prinses Margrietstraat 24& 25 Deventer

Prinses Margrietstraat 24& 25, 7415 Deventer

Ontvang updates voor Deventer

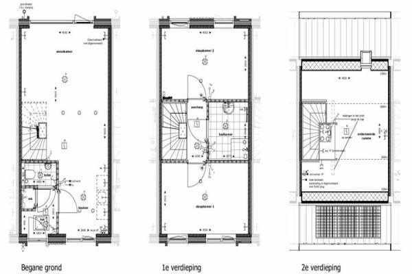
Het adres van deze woning uit 2026 is Prinses Margrietstraat 24& 25 te Deventer. Het pand heeft een oppervlakte van 97m² en een perceeloppervlakte van 94m² en heeft 4 kamers kamers waarvan 2 slaapkamers. De geschatte waarde van deze woning is € 419.500.

Bekijk alle woningen in Deventer

Gegevens van Eengezinswoning, tussenwoning

Bouwjaar
2026
Geschatte waarde
€ 419.500
Oppervlakte
97 m2
Inhoud
340 m3
Aantal kamers
4 kamers
Slaapkamers
2
Badkamers
1 badkamer en 1 apart toilet
Soort bouw
Nieuwbouw
Eigendomssituatie
Volle eigendom
Ligging
Aan rustige weg en in woonwijk
Tuin
Achtertuin en voortuin
Achtertuin
41 m² (8,70 meter diep en 4,70 meter breed)

Voorzieningen in de buurt

Boodschappen0,7 km
Grote supermarkt0,8 km
Cafetaria0,7 km
Restaurant0,7 km
Huisarts1,0 km
Ziekenhuis3,7 km
Kinderdagverblijf0,5 km
BSO0,6 km
Alle voorzieningen in Deventer

Binnenkijken bij Prinses Margrietstraat 24& 25 te Deventer

Meer meldingen in deze omgeving

Onroerend goed
Dinsdag 23-12-2025
Solingenstraat 49, 7421ZR Deventer

Binnenkijken bij
Dinsdag 23-12-2025
Diepenveenseweg 26, 7413AR Deventer

Nieuw bedrijf
December 2025
Hunneperweg 1, 7418EH Deventer

Nieuw bedrijf
December 2025
Cornelis Lelylaan 35, 7424CB Deventer

Nieuw bedrijf
December 2025
Ferdinand Bolstraat 44, 7412GN Deventer

Nieuw bedrijf
December 2025
Staverenstraat 15, 7418CJ Deventer

Nieuw bedrijf
December 2025
Binnensingel 51, 7411PL Deventer

Nieuw bedrijf
December 2025
Oranjelaan 46, 7431AC Diepenveen

Direct een e-mail ontvangen bij nieuwe meldingen in deze regio?

Meld je dan GRATIS aan voor de Oozo Alert service voor Deventer

Instellen

Meer nieuws in Deventer

Weten hoe eenvoudig het is om af te vallen? Zonder pillen en smeersels en zonder je in het zweet te werken!
Kijk op eenvoudig-afvallen.nl

© 2012 - 2025 OOZO.nl - info@oozo.nl - Gegevens verwijderen? | Disclaimer | Privacy statement