Woning Avercampstraat 18 Ede

Avercampstraat 18, 6717NA Ede

Ontvang updates voor Elskamp

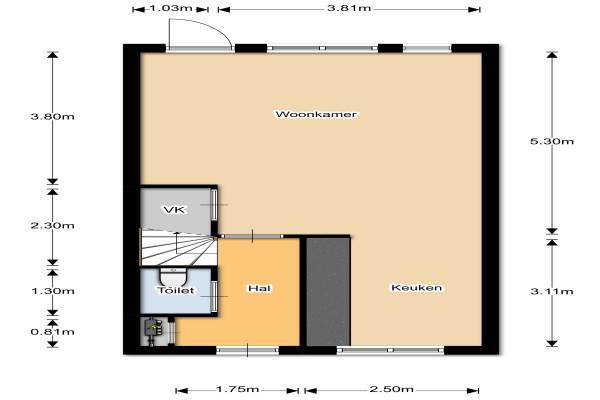
Het adres van deze woning uit 1986 is Avercampstraat 18 te Ede. Het pand heeft een oppervlakte van 85m² en een perceeloppervlakte van 131m² en heeft 5 kamers kamers waarvan 4 slaapkamers. De geschatte waarde van deze woning is € 209.500.

Bekijk alle woningen in Elskamp

Gegevens van Eengezinswoning, tussenwoning

Bouwjaar
1986
Geschatte waarde
€ 209.500
Oppervlakte
85 m2
Inhoud
300 m3
Aantal kamers
5 kamers
Slaapkamers
4
Badkamers
2 aparte toiletten
Soort bouw
Bestaande bouw
Eigendomssituatie
Volle eigendom
Ligging
Aan rustige weg en in woonwijk
Tuin
Achtertuin en voortuin
Achtertuin
55 m² (11m diep en 5m breed)

Voorzieningen in de buurt

Boodschappen0,8 km
Grote supermarkt0,9 km
Cafetaria0,8 km
Restaurant0,9 km
Huisarts0,4 km
Ziekenhuis1,2 km
Kinderdagverblijf0,4 km
BSO0,4 km
Alle voorzieningen in Elskamp

Binnenkijken bij Avercampstraat 18 te Ede

Meer meldingen in deze omgeving

Binnenkijken bij
Dinsdag 17-3-2026
Paul Gabriëlstraat 41, 6717RA Ede

Nieuw bedrijf
Maart 2026
Jan Vermeerstraat 31, 6717SL Ede

Nieuw bedrijf
Maart 2026
Paul Gabriëlstraat 6, 6717RC Ede

112 melding
Zaterdag 7-3-2026 om 22:10
Krusemanstraat, 6717MV Ede

Binnenkijken bij
Vrijdag 27-2-2026
Gerard Doustraat 118, 6717MN Ede

Nieuw bedrijf
Februari 2026
Gerard Doustraat 123, 6717MJ Ede

Binnenkijken bij
Zaterdag 21-2-2026
Jordaensstraat 12, 6717RK Ede

112 melding
Donderdag 12-2-2026 om 12:52
Paul Gabriëlstraat, Ede

Direct een e-mail ontvangen bij nieuwe meldingen in deze regio?

Meld je dan GRATIS aan voor de Oozo Alert service voor Elskamp

Instellen

Meer nieuws in Elskamp

Weten hoe eenvoudig het is om af te vallen? Zonder pillen en smeersels en zonder je in het zweet te werken!
Kijk op eenvoudig-afvallen.nl

© 2012 - 2026 OOZO.nl - info@oozo.nl - Gegevens verwijderen? | Disclaimer | Privacy statement