Woning Willem van Hornestraat 15 Eindhoven

Willem van Hornestraat 15, 5611PT Eindhoven

Ontvang updates voor Rochusbuurt

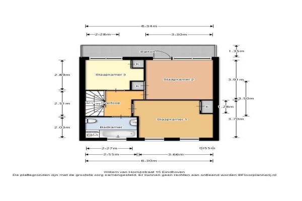
Het adres van deze woning uit 1958 is Willem van Hornestraat 15 te Eindhoven. Het pand heeft een oppervlakte van 150m² en een perceeloppervlakte van 204m² en heeft 5 kamers kamers waarvan 4 slaapkamers. De geschatte waarde van deze woning is € 479.000.

Bekijk alle woningen in Rochusbuurt

Gegevens van Herenhuis, tussenwoning

Bouwjaar
1958
Geschatte waarde
€ 479.000
Oppervlakte
150 m2
Inhoud
468 m3
Aantal kamers
5 kamers
Slaapkamers
4
Badkamers
2 badkamers en 2 aparte toiletten
Soort bouw
Bestaande bouw
Eigendomssituatie
Volle eigendom
Ligging
In centrum en in woonwijk
Tuin
Achtertuin
Achtertuin
111 m² (17m diep en 6,5m breed)

Voorzieningen in de buurt

Binnenkijken bij Willem van Hornestraat 15 te Eindhoven

Meer meldingen in deze omgeving

Binnenkijken bij
Woensdag 10-12-2025
Geldropseweg 56, 5611SJ Eindhoven

Nieuw bedrijf
December 2025
St Rochusstraat 38A, 5611RJ Eindhoven

Nieuw bedrijf
December 2025
Hertogstraat 17, 5611PA Eindhoven

Nieuw bedrijf
December 2025
St Jorislaan 68A, 5611PN Eindhoven

Binnenkijken bij
Zondag 7-12-2025
Willem van Millenberchstraat 18, 5611PS Eindhoven

Binnenkijken bij
Zaterdag 6-12-2025
Hertog Hendrik van Brabantplein 1C, 5611PD Eindhoven

Binnenkijken bij
Vrijdag 5-12-2025
St Rochusstraat 14, 5611RH Eindhoven

Binnenkijken bij
Donderdag 4-12-2025
Hertog Hendrik van Brabantplein 18D, 5611PE Eindhoven

Direct een e-mail ontvangen bij nieuwe meldingen in deze regio?

Meld je dan GRATIS aan voor de Oozo Alert service voor Rochusbuurt

Instellen

Meer nieuws in Rochusbuurt

Weten hoe eenvoudig het is om af te vallen? Zonder pillen en smeersels en zonder je in het zweet te werken!
Kijk op eenvoudig-afvallen.nl

© 2012 - 2025 OOZO.nl - info@oozo.nl - Gegevens verwijderen? | Disclaimer | Privacy statement