Woning Graszode 8 Eindhoven

Graszode 8, 5658GK Eindhoven

Ontvang updates voor Grasrijk

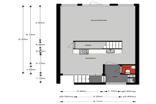
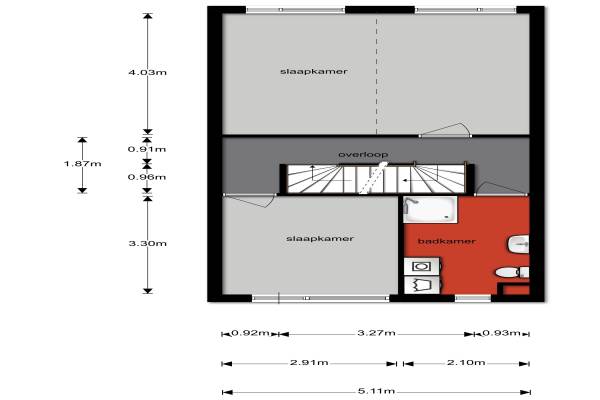
Het adres van deze woning uit 2005 is Graszode 8 te Eindhoven. Het pand heeft een oppervlakte van 125m² en een perceeloppervlakte van 143m² en heeft 4 kamers kamers waarvan 3 slaapkamers. De geschatte waarde van deze woning is € 285.000.

Bekijk alle woningen in Grasrijk

Gegevens van Eengezinswoning, tussenwoning

Bouwjaar
2005
Geschatte waarde
€ 285.000
Oppervlakte
125 m2
Inhoud
385 m3
Aantal kamers
4 kamers
Slaapkamers
3
Badkamers
1 apart toilet
Soort bouw
Bestaande bouw
Eigendomssituatie
Volle eigendom
Ligging
In woonwijk en vrij uitzicht
Tuin
Achtertuin
Achtertuin
59 m² (11m diep en 5,4m breed)

Voorzieningen in de buurt

Binnenkijken bij Graszode 8 te Eindhoven

Meer meldingen in deze omgeving

Nieuw bedrijf
November 2025
Graslinnen 2, 5658HR Eindhoven

Nieuw bedrijf
November 2025
Grasplantsoen 22, 5658HE Eindhoven

Binnenkijken bij
Woensdag 19-11-2025
Grasperk 8, 5658HD Eindhoven

Binnenkijken bij
Zaterdag 15-11-2025
Grasplantsoen 44, 5658HE Eindhoven

Binnenkijken bij
Vrijdag 14-11-2025
Grasmier 7, 5658GE Eindhoven

Nieuw bedrijf
November 2025
Graslinnen 30, 5658HR Eindhoven

Binnenkijken bij
Dinsdag 11-11-2025
Sliffertsestraat 6, 5657AR Eindhoven

Binnenkijken bij
Dinsdag 11-11-2025
Grassteppe 2, 5658HW Eindhoven

Direct een e-mail ontvangen bij nieuwe meldingen in deze regio?

Meld je dan GRATIS aan voor de Oozo Alert service voor Grasrijk

Instellen

Meer nieuws in Grasrijk

Weten hoe eenvoudig het is om af te vallen? Zonder pillen en smeersels en zonder je in het zweet te werken!
Kijk op eenvoudig-afvallen.nl

© 2012 - 2025 OOZO.nl - info@oozo.nl - Gegevens verwijderen? | Disclaimer | Privacy statement