Woning Grasveld 14 Eindhoven

Grasveld 14, 5658GD Eindhoven

Ontvang updates voor Grasrijk

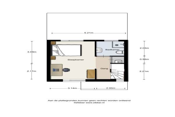
Het adres van deze woning uit 2004 is Grasveld 14 te Eindhoven. Het pand heeft een oppervlakte van 110m² en een perceeloppervlakte van 106m² en heeft 4 kamers kamers waarvan 3 slaapkamers. De geschatte waarde van deze woning is € 269.500.

Bekijk alle woningen in Grasrijk

Gegevens van Eengezinswoning, tussenwoning

Bouwjaar
2004
Geschatte waarde
€ 269.500
Oppervlakte
110 m2
Inhoud
410 m3
Aantal kamers
4 kamers
Slaapkamers
3
Badkamers
2 badkamers en 1 apart toilet
Soort bouw
Bestaande bouw
Eigendomssituatie
Volle eigendom
Ligging
In woonwijk
Tuin
Achtertuin en voortuin
Achtertuin
44 m² (8,8m diep en 5m breed)

Voorzieningen in de buurt

Binnenkijken bij Grasveld 14 te Eindhoven

Meer meldingen in deze omgeving

Nieuw bedrijf
Mei 2026
Grassnip 24, 5658EA Eindhoven

Binnenkijken bij
Zondag 10-5-2026
Grasvink 42, 5658EB Eindhoven

Binnenkijken bij
Zondag 10-5-2026
Grassavanne 10, 5658EV Eindhoven

Binnenkijken bij
Zondag 10-5-2026
Graspol 29, 5658GH Eindhoven

Binnenkijken bij
Vrijdag 8-5-2026
Graslook 58, 5658GW Eindhoven

Binnenkijken bij
Vrijdag 8-5-2026
Grasperk 26, 5658HD Eindhoven

Binnenkijken bij
Vrijdag 8-5-2026
Grasbloem 83, 5658GJ Eindhoven

Binnenkijken bij
Dinsdag 5-5-2026
Grasbloem 5, 5658GJ Eindhoven

Direct een e-mail ontvangen bij nieuwe meldingen in deze regio?

Meld je dan GRATIS aan voor de Oozo Alert service voor Grasrijk

Instellen

Meer nieuws in Grasrijk

Weten hoe eenvoudig het is om af te vallen? Zonder pillen en smeersels en zonder je in het zweet te werken!
Kijk op eenvoudig-afvallen.nl

© 2012 - 2026 OOZO.nl - info@oozo.nl - Gegevens verwijderen? | Disclaimer | Privacy statement