Woning Franklin D Rooseveltlaan 179 Eindhoven

Franklin D Rooseveltlaan 179, 5625AX Eindhoven

Ontvang updates voor Winkelcentrum

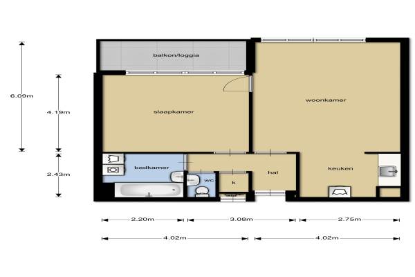
Het adres van deze woning uit 1979 is Franklin D Rooseveltlaan 179 te Eindhoven. Het pand heeft een oppervlakte van 64m² en heeft 2 kamers kamers waarvan 1 slaapkamers. De geschatte waarde van deze woning is € 128.500.

Bekijk alle woningen in Winkelcentrum

Gegevens van Portiekflat (appartement)

Bouwjaar
1979
Geschatte waarde
€ 128.500
Oppervlakte
64 m2
Inhoud
175 m3
Aantal kamers
2 kamers
Slaapkamers
1
Badkamers
1 badkamer en 1 apart toilet
Soort bouw
Bestaande bouw
Eigendomssituatie
Volle eigendom
Ligging
Aan drukke weg en vrij uitzicht

Voorzieningen in de buurt

Binnenkijken bij Franklin D Rooseveltlaan 179 te Eindhoven

Meer meldingen in deze omgeving

Nieuw bedrijf
Oktober 2025
Genovevalaan 142, 5625AL Eindhoven

Nieuw bedrijf
Oktober 2025
Winkelcentrum Woensel 350, 5625AG Eindhoven

Nieuw bedrijf
Oktober 2025
Winkelcentrum Woensel 358, 5625AG Eindhoven

Nieuw bedrijf
Oktober 2025
Winkelcentrum Woensel 302, 5625AG Eindhoven

Faillissement
Woensdag 1-10-2025
Winkelcentrum Woensel 112, 5625AG Eindhoven

Binnenkijken bij
Donderdag 25-9-2025
Genovevalaan 168, 5625AM Eindhoven

112 melding
Dinsdag 23-9-2025 om 05:46
Diekirchlaan, 5625AH Eindhoven

Binnenkijken bij
Vrijdag 19-9-2025
Diekirchlaan 161, 5625AH Eindhoven

Direct een e-mail ontvangen bij nieuwe meldingen in deze regio?

Meld je dan GRATIS aan voor de Oozo Alert service voor Winkelcentrum

Instellen

Meer nieuws in Winkelcentrum

Weten hoe eenvoudig het is om af te vallen? Zonder pillen en smeersels en zonder je in het zweet te werken!
Kijk op eenvoudig-afvallen.nl

© 2012 - 2025 OOZO.nl - info@oozo.nl - Gegevens verwijderen? | Disclaimer | Privacy statement