Woning Helenahof 11 Eindhoven

Helenahof 11, 5631GS Eindhoven

Ontvang updates voor Oude Gracht-West

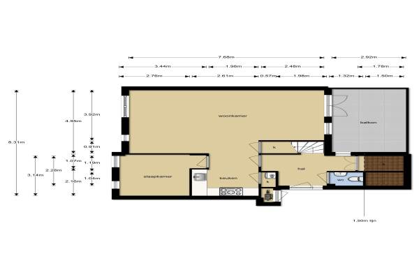
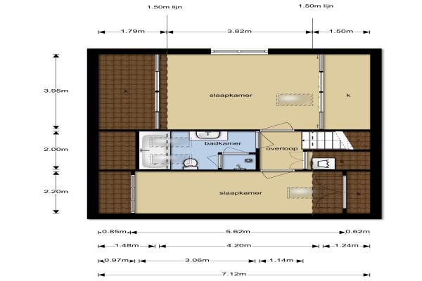
Het adres van deze woning uit 1991 is Helenahof 11 te Eindhoven. Het pand heeft een oppervlakte van 102m² en heeft 4 kamers kamers waarvan 3 slaapkamers. De geschatte waarde van deze woning is € 239.500.

Bekijk alle woningen in Oude Gracht-West

Gegevens van Maisonnette (appartement)

Bouwjaar
1991
Geschatte waarde
€ 239.500
Oppervlakte
102 m2
Inhoud
389 m3
Aantal kamers
4 kamers
Slaapkamers
3
Badkamers
1 badkamer en 1 apart toilet
Soort bouw
Bestaande bouw
Ligging
Aan rustige weg, in woonwijk en vrij uitzicht
Tuin
Zonneterras

Voorzieningen in de buurt

Binnenkijken bij Helenahof 11 te Eindhoven

Meer meldingen in deze omgeving

112 melding
Donderdag 7-5-2026 om 16:00
Orpheuslaan, Eindhoven

Binnenkijken bij
Dinsdag 5-5-2026
Penelopestraat 143, 5631CL Eindhoven

Binnenkijken bij
Dinsdag 5-5-2026
Niobepad 3, 5631GN Eindhoven

Binnenkijken bij
Dinsdag 5-5-2026
Penelopestraat 155, 5631CM Eindhoven

Nieuw bedrijf
Mei 2026
Ithacastraat 14, 5631JE Eindhoven

Nieuw bedrijf
Mei 2026
Ithacastraat 14, 5631JE Eindhoven

112 melding
Zondag 26-4-2026 om 03:07
Castorstraat, Eindhoven

Nieuw bedrijf
April 2026
Thaliastraat 11, 5631HT Eindhoven

Direct een e-mail ontvangen bij nieuwe meldingen in deze regio?

Meld je dan GRATIS aan voor de Oozo Alert service voor Oude Gracht-West

Instellen

Meer nieuws in Oude Gracht-West

Weten hoe eenvoudig het is om af te vallen? Zonder pillen en smeersels en zonder je in het zweet te werken!
Kijk op eenvoudig-afvallen.nl

© 2012 - 2026 OOZO.nl - info@oozo.nl - Gegevens verwijderen? | Disclaimer | Privacy statement