Woning Elzenlaan 41 Emmer-Compascuum

Elzenlaan 41, 7881PW Emmer-Compascuum

Ontvang updates voor Emmer-Compascuum Centrum

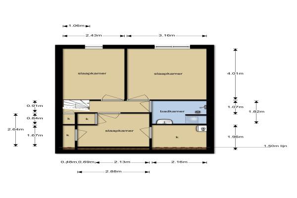
Het adres van deze woning uit 1976 is Elzenlaan 41 te Emmer-Compascuum. Het pand heeft een oppervlakte van 91m² en een perceeloppervlakte van 142m² en heeft 4 kamers kamers waarvan 3 slaapkamers. De geschatte waarde van deze woning is € 125.000.

Bekijk alle woningen in Emmer-Compascuum Centrum

Gegevens van Eengezinswoning, tussenwoning

Bouwjaar
1976
Geschatte waarde
€ 125.000
Oppervlakte
91 m2
Inhoud
357 m3
Aantal kamers
4 kamers
Slaapkamers
3
Badkamers
1 apart toilet
Soort bouw
Bestaande bouw
Eigendomssituatie
Volle eigendom
Ligging
In woonwijk
Tuin
Achtertuin
Achtertuin
60 m² (10m diep en 6m breed)

Voorzieningen in de buurt

Boodschappen0,7 km
Grote supermarkt0,6 km
Cafetaria0,7 km
Restaurant0,6 km
Huisarts1,2 km
Ziekenhuis11,2 km
Kinderdagverblijf0,4 km
BSO0,5 km
Alle voorzieningen in Emmer-Compascuum Centrum

Binnenkijken bij Elzenlaan 41 te Emmer-Compascuum

Meer meldingen in deze omgeving

Nieuw bedrijf
December 2025
Streng 90, 7881CJ Emmer-Compascuum

Binnenkijken bij
Vrijdag 12-12-2025
Hoofdkanaal OZ 81R, 7881CN Emmer-Compascuum

Binnenkijken bij
Vrijdag 12-12-2025
Kalkwark 1, 7881LW Emmer-Compascuum

Nieuw bedrijf
December 2025
Lindenlaan 6, 7881HZ Emmer-Compascuum

Binnenkijken bij
Woensdag 10-12-2025
Pastoor Swildensstraat 15, 7881EA Emmer-Compascuum

Binnenkijken bij
Vrijdag 5-12-2025
Verlengde Tweede Koppelveenweg 12, 7881ER Emmer-Compascuum

Binnenkijken bij
Donderdag 4-12-2025
Hoofdkanaal OZ 92, 7881CN Emmer-Compascuum

Binnenkijken bij
Zaterdag 29-11-2025
Eerste Koppelveenweg 90, 7881EH Emmer-Compascuum

Direct een e-mail ontvangen bij nieuwe meldingen in deze regio?

Meld je dan GRATIS aan voor de Oozo Alert service voor Emmer-Compascuum Centrum

Instellen

Meer nieuws in Emmer-Compascuum Centrum

Weten hoe eenvoudig het is om af te vallen? Zonder pillen en smeersels en zonder je in het zweet te werken!
Kijk op eenvoudig-afvallen.nl

© 2012 - 2025 OOZO.nl - info@oozo.nl - Gegevens verwijderen? | Disclaimer | Privacy statement