Bouwgrond Korte Kavel 43 Emmer-Compascuum

Korte Kavel 43, 7881LV Emmer-Compascuum

Ontvang updates voor Emmer-Erfscheidenveen

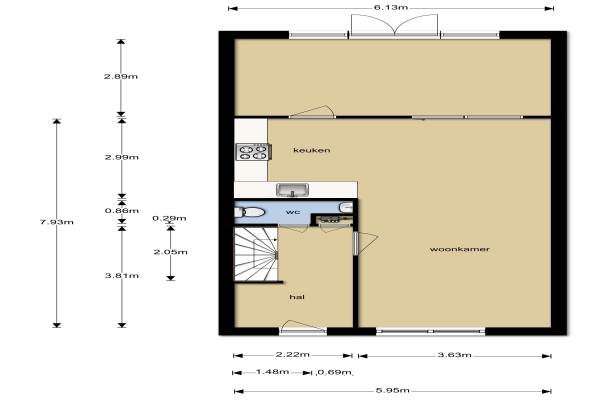
Het adres van dit kavel is Korte Kavel 43 te Emmer-Compascuum. Het pand heeft een oppervlakte van 130m² en een perceeloppervlakte van 168m² en heeft 5 kamers kamers waarvan 4 slaapkamers. De geschatte waarde van dit kavel is € 125.000.

Bekijk alle woningen in Emmer-Erfscheidenveen

Gegevens van Eengezinswoning, tussenwoning

Bouwjaar
1975
Geschatte waarde
€ 125.000
Oppervlakte
130 m2
Inhoud
434 m3
Aantal kamers
5 kamers
Slaapkamers
4
Badkamers
1 badkamer en 1 apart toilet
Soort bouw
Bestaande bouw
Eigendomssituatie
Volle eigendom
Ligging
Aan rustige weg en in woonwijk
Tuin
Achtertuin en voortuin
Achtertuin
85 m² (12,5m diep en 6,8m breed)

Voorzieningen in de buurt

Boodschappen3,0 km
Grote supermarkt0,9 km
Cafetaria1,0 km
Restaurant2,9 km
Huisarts1,3 km
Ziekenhuis7,6 km
Kinderdagverblijf0,6 km
BSO0,7 km
Alle voorzieningen in Emmer-Erfscheidenveen

Binnenkijken bij Korte Kavel 43 te Emmer-Compascuum

Meer meldingen in deze omgeving

Nieuw bedrijf
November 2025
Kanaal A NZ 221, 7881KV Emmer-Compascuum

Faillissement
Woensdag 19-11-2025
Rademakerstraat 17, 7881JX Emmer-Compascuum

Faillissement
Woensdag 19-11-2025
Runde NZ 15, 7881JE EMMER-COMPASCUUM

Faillissement
Woensdag 19-11-2025
Rademakerstraat 1, 7881JX EMMER-COMPASCUUM

Faillissement
Woensdag 19-11-2025
Rademakerstraat 1, 7881JX Emmer-Compascuum

Faillissement
Woensdag 19-11-2025
Rademakerstraat 1, 7881JX Emmer-Compascuum

Nieuw bedrijf
November 2025
Veenroede 12, 7881XL Emmer-Compascuum

Nieuw bedrijf
Oktober 2025
Korte Kavel 9, 7881LT Emmer-Compascuum

Direct een e-mail ontvangen bij nieuwe meldingen in deze regio?

Meld je dan GRATIS aan voor de Oozo Alert service voor Emmer-Erfscheidenveen

Instellen

Meer nieuws in Emmer-Erfscheidenveen

Weten hoe eenvoudig het is om af te vallen? Zonder pillen en smeersels en zonder je in het zweet te werken!
Kijk op eenvoudig-afvallen.nl

© 2012 - 2025 OOZO.nl - info@oozo.nl - Gegevens verwijderen? | Disclaimer | Privacy statement