Woning Bootstraat 32 Etten-Leur

Bootstraat 32, 4871XJ Etten-Leur

Ontvang updates voor Baai 1

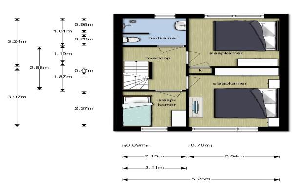
Het adres van deze woning uit 1953 is Bootstraat 32 te Etten-Leur. Het pand heeft een oppervlakte van 76m² en een perceeloppervlakte van 163m² en heeft 5 kamers kamers waarvan 3 slaapkamers. De geschatte waarde van deze woning is € 189.500.

Bekijk alle woningen in Baai 1

Gegevens van Eengezinswoning, tussenwoning

Bouwjaar
1953
Geschatte waarde
€ 189.500
Oppervlakte
76 m2
Inhoud
291 m3
Aantal kamers
5 kamers
Slaapkamers
3
Badkamers
1 badkamer en 2 aparte toiletten
Soort bouw
Bestaande bouw
Eigendomssituatie
Volle eigendom
Ligging
Aan rustige weg en in woonwijk
Tuin
Achtertuin en voortuin
Achtertuin
101 m² (18,39m diep en 5,5m breed)

Voorzieningen in de buurt

Boodschappen0,5 km
Grote supermarkt0,5 km
Cafetaria0,3 km
Restaurant0,5 km
Huisarts0,6 km
Ziekenhuis1,6 km
Kinderdagverblijf0,3 km
BSO0,3 km
Alle voorzieningen in Baai 1

Binnenkijken bij Bootstraat 32 te Etten-Leur

Meer meldingen in deze omgeving

Binnenkijken bij
Vrijdag 27-3-2026
Bootstraat 38, 4871XJ Etten-Leur

Binnenkijken bij
Maandag 23-3-2026
Van der Poest Clementstraat 31, 4871XK Etten-Leur

112 melding
Zondag 11-1-2026 om 10:54
Cornelisstraat, 4871XM Etten-Leur

112 melding
Zondag 11-1-2026 om 10:38
Cornelisstraat, 4871XM Etten-Leur

112 melding
Donderdag 8-1-2026 om 16:05
Pater Arnold Damenstraat, Etten-Leur

112 melding
Woensdag 31-12-2025 om 10:07
Van der Poest Clementstraat, Etten-Leur

112 melding
Maandag 29-12-2025 om 10:19
Pater Arnold Damenstraat, Etten-Leur

Binnenkijken bij
Vrijdag 26-12-2025
De Bruijnstraat 18, 4871XH Etten-Leur

Direct een e-mail ontvangen bij nieuwe meldingen in deze regio?

Meld je dan GRATIS aan voor de Oozo Alert service voor Baai 1

Instellen

Meer nieuws in Baai 1

Weten hoe eenvoudig het is om af te vallen? Zonder pillen en smeersels en zonder je in het zweet te werken!
Kijk op eenvoudig-afvallen.nl

© 2012 - 2026 OOZO.nl - info@oozo.nl - Gegevens verwijderen? | Disclaimer | Privacy statement