Woning Kuiperijstraat 26 Raamsdonksveer

Kuiperijstraat 26, 4942VM Raamsdonksveer

Ontvang updates voor Hooipolder en De Hoeven

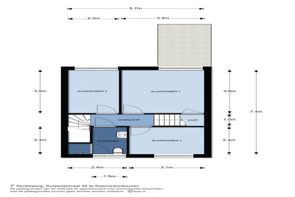
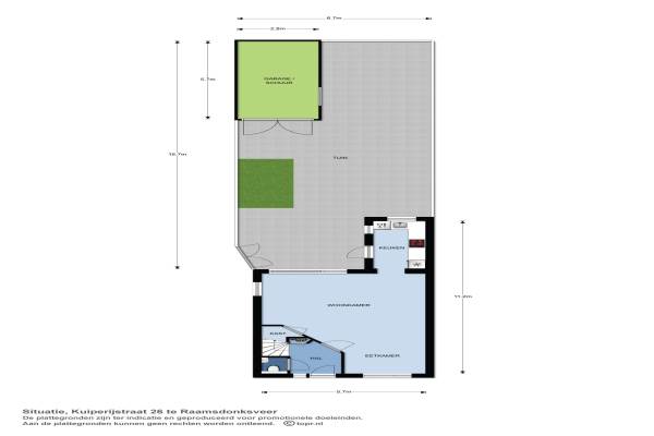
Het adres van deze woning uit 1998 is Kuiperijstraat 26 te Raamsdonksveer. Het pand heeft een oppervlakte van 115m² en een perceeloppervlakte van 197m² en heeft 5 kamers kamers waarvan 4 slaapkamers. De geschatte waarde van deze woning is € 249.000.

Bekijk alle woningen in Hooipolder en De Hoeven

Gegevens van Eengezinswoning, eindwoning

Bouwjaar
1998
Geschatte waarde
€ 249.000
Oppervlakte
115 m2
Inhoud
404 m3
Aantal kamers
5 kamers
Slaapkamers
4
Badkamers
1 badkamer en 1 apart toilet
Soort bouw
Bestaande bouw
Eigendomssituatie
Volle eigendom
Ligging
In woonwijk
Tuin
Achtertuin en voortuin
Achtertuin
87 m² (16,7m diep en 6,7m breed)

Voorzieningen in de buurt

Boodschappen0,6 km
Grote supermarkt0,6 km
Cafetaria0,6 km
Restaurant0,6 km
Huisarts1,7 km
Ziekenhuis7,1 km
Kinderdagverblijf0,5 km
BSO0,5 km
Alle voorzieningen in Hooipolder en De Hoeven

Binnenkijken bij Kuiperijstraat 26 te Raamsdonksveer

Meer meldingen in deze omgeving

Binnenkijken bij
Dinsdag 11-11-2025
Baksweer 202, 4941LJ Raamsdonksveer

Binnenkijken bij
Dinsdag 11-11-2025
Simon Vestdijkstraat 21, 4942DM Raamsdonksveer

Binnenkijken bij
Dinsdag 11-11-2025
Kuiperijstraat 20, 4942VM Raamsdonksveer

112 melding
Woensdag 5-11-2025 om 18:33
Hoevendijk, 4941LP Raamsdonksveer

112 melding
Woensdag 5-11-2025 om 18:33
Hoevendijk, 4941LP Raamsdonksveer

112 melding
Woensdag 5-11-2025 om 18:33
Hoevendijk, 4941LP Raamsdonksveer

112 melding
Woensdag 5-11-2025 om 18:33
Hoevendijk, 4941LP Raamsdonksveer

Nieuw bedrijf
Oktober 2025
Rijvoortshoef 13, 4941VA Raamsdonksveer

Direct een e-mail ontvangen bij nieuwe meldingen in deze regio?

Meld je dan GRATIS aan voor de Oozo Alert service voor Hooipolder en De Hoeven

Instellen

Meer nieuws in Hooipolder en De Hoeven

Weten hoe eenvoudig het is om af te vallen? Zonder pillen en smeersels en zonder je in het zweet te werken!
Kijk op eenvoudig-afvallen.nl

© 2012 - 2025 OOZO.nl - info@oozo.nl - Gegevens verwijderen? | Disclaimer | Privacy statement