Woning Bussummerstraat 17A Naarden

Bussummerstraat 17A, 1411PK Naarden

Ontvang updates voor Naarden Vesting

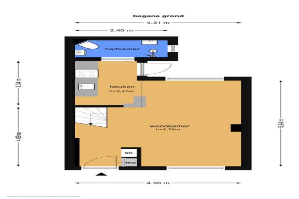
Het adres van deze woning is Bussummerstraat 17A te Naarden. Het pand heeft een oppervlakte van 56m² en een perceeloppervlakte van 37m² en heeft 4 kamers kamers waarvan 3 slaapkamers. De geschatte waarde van deze woning is € 445.000.

Bekijk alle woningen in Naarden Vesting

Gegevens van Eengezinswoning, tussenwoning

Bouwjaar
Voor 1906
Geschatte waarde
€ 445.000
Oppervlakte
56 m2
Inhoud
231 m3
Aantal kamers
4 kamers
Slaapkamers
3
Badkamers
2 badkamers
Soort bouw
Bestaande bouw
Eigendomssituatie
Volle eigendom
Ligging
Aan rustige weg en in woonwijk
Tuin
Patio/atrium

Voorzieningen in de buurt

Boodschappen0,2 km
Grote supermarkt0,2 km
Cafetaria0,2 km
Restaurant0,1 km
Huisarts0,3 km
Ziekenhuis5,0 km
Kinderdagverblijf0,3 km
BSO0,9 km
Alle voorzieningen in Naarden Vesting

Binnenkijken bij Bussummerstraat 17A te Naarden

Meer meldingen in deze omgeving

Nieuw bedrijf
November 2025
Kloosterstraat 30, 1411RT Naarden

Binnenkijken bij
Dinsdag 18-11-2025
Marktstraat 36, 1411EA Naarden

Binnenkijken bij
Vrijdag 14-11-2025
Pastoorstraat 12, 1411SE Naarden

Onroerend goed
Dinsdag 11-11-2025
Kooltjesbuurt 1-C 10, 1411RZ Naarden

Binnenkijken bij
Dinsdag 11-11-2025
Cattenhagestraat 45A, 1411CS Naarden

Binnenkijken bij
Dinsdag 11-11-2025
Wijde Steeg 5, 1411PP Naarden

Binnenkijken bij
Dinsdag 11-11-2025
Ruijsdaelplein 4, 1411RD Naarden

Binnenkijken bij
Dinsdag 11-11-2025
Beijert 22, 1411RB Naarden

Direct een e-mail ontvangen bij nieuwe meldingen in deze regio?

Meld je dan GRATIS aan voor de Oozo Alert service voor Naarden Vesting

Instellen

Meer nieuws in Naarden Vesting

Weten hoe eenvoudig het is om af te vallen? Zonder pillen en smeersels en zonder je in het zweet te werken!
Kijk op eenvoudig-afvallen.nl

© 2012 - 2025 OOZO.nl - info@oozo.nl - Gegevens verwijderen? | Disclaimer | Privacy statement