Woning Bleulandweg 350 Gouda

Bleulandweg 350, 2803HN Gouda

Ontvang updates voor Boerhaavekwartier

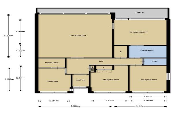
Het adres van deze woning uit 1968 is Bleulandweg 350 te Gouda. Het pand heeft een oppervlakte van 85m² en heeft 4 kamers kamers waarvan 3 slaapkamers. De geschatte waarde van deze woning is € 150.000.

Bekijk alle woningen in Boerhaavekwartier

Gegevens van Galerijflat (appartement)

Bouwjaar
1968
Geschatte waarde
€ 150.000
Oppervlakte
85 m2
Inhoud
250 m3
Aantal kamers
4 kamers
Slaapkamers
3
Badkamers
1 badkamer en 1 apart toilet
Soort bouw
Bestaande bouw
Eigendomssituatie
Volle eigendom
Ligging
Aan water, aan park, in woonwijk en vrij uitzicht
Tuin
Zonneterras

Voorzieningen in de buurt

Boodschappen0,6 km
Grote supermarkt0,7 km
Cafetaria0,6 km
Restaurant0,4 km
Huisarts0,5 km
Ziekenhuis0,4 km
Kinderdagverblijf0,6 km
BSO0,7 km
Alle voorzieningen in Boerhaavekwartier

Binnenkijken bij Bleulandweg 350 te Gouda

Meer meldingen in deze omgeving

112 melding
Donderdag 25-12-2025 om 08:59
Bleulandweg, Gouda

112 melding
Donderdag 25-12-2025 om 08:57
Bleulandweg, Gouda

112 melding
Donderdag 25-12-2025 om 03:26
Bleulandweg, Gouda

112 melding
Donderdag 25-12-2025 om 03:26
Bleulandweg, Gouda

Nieuw bedrijf
December 2025
Anna van Hensbeeksingel 72, 2803LJ Gouda

112 melding
Woensdag 24-12-2025 om 08:18
Ronsseweg, Gouda

112 melding
Woensdag 24-12-2025 om 08:12
Ronsseweg, Gouda

112 melding
Dinsdag 23-12-2025 om 19:25
Bleulandweg, 2803HH Gouda

Direct een e-mail ontvangen bij nieuwe meldingen in deze regio?

Meld je dan GRATIS aan voor de Oozo Alert service voor Boerhaavekwartier

Instellen

Meer nieuws in Boerhaavekwartier

Weten hoe eenvoudig het is om af te vallen? Zonder pillen en smeersels en zonder je in het zweet te werken!
Kijk op eenvoudig-afvallen.nl

© 2012 - 2025 OOZO.nl - info@oozo.nl - Gegevens verwijderen? | Disclaimer | Privacy statement