Woning Dreef 20 Gouda

Dreef 20, 2803HB Gouda

Ontvang updates voor Boerhaavekwartier

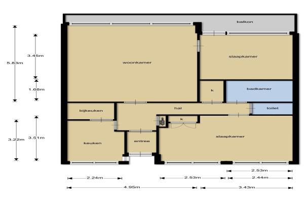
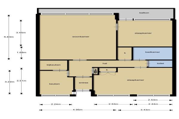
Het adres van deze woning uit 1968 is Dreef 20 te Gouda. Het pand heeft een oppervlakte van 86m² en heeft 3 kamers kamers waarvan 2 slaapkamers. De geschatte waarde van deze woning is € 157.500.

Bekijk alle woningen in Boerhaavekwartier

Gegevens van Galerijflat (appartement)

Bouwjaar
1968
Geschatte waarde
€ 157.500
Oppervlakte
86 m2
Inhoud
250 m3
Aantal kamers
3 kamers
Slaapkamers
2
Badkamers
1 apart toilet
Soort bouw
Bestaande bouw
Eigendomssituatie
Volle eigendom
Ligging
Aan water, aan park, in woonwijk en vrij uitzicht
Tuin
Zonneterras

Voorzieningen in de buurt

Boodschappen0,6 km
Grote supermarkt0,7 km
Cafetaria0,6 km
Restaurant0,4 km
Huisarts0,5 km
Ziekenhuis0,4 km
Kinderdagverblijf0,6 km
BSO0,7 km
Alle voorzieningen in Boerhaavekwartier

Binnenkijken bij Dreef 20 te Gouda

Meer meldingen in deze omgeving

112 melding
Zaterdag 29-11-2025 om 10:13
Bleulandweg, Gouda

Binnenkijken bij
Zaterdag 29-11-2025
Ridder van Catsweg 164, 2805BB Gouda

112 melding
Vrijdag 28-11-2025 om 21:18
Ronsseweg, Gouda

112 melding
Vrijdag 28-11-2025 om 21:16
Ronsseweg, Gouda

112 melding
Vrijdag 28-11-2025 om 21:13
Ronsseweg, Gouda

112 melding
Vrijdag 28-11-2025 om 21:10
Ronsseweg, Gouda

112 melding
Vrijdag 28-11-2025 om 15:28
Burgemeester Jamesplein, 2803PG Gouda

112 melding
Vrijdag 28-11-2025 om 09:46
Bleulandweg, Gouda

Direct een e-mail ontvangen bij nieuwe meldingen in deze regio?

Meld je dan GRATIS aan voor de Oozo Alert service voor Boerhaavekwartier

Instellen

Meer nieuws in Boerhaavekwartier

Weten hoe eenvoudig het is om af te vallen? Zonder pillen en smeersels en zonder je in het zweet te werken!
Kijk op eenvoudig-afvallen.nl

© 2012 - 2025 OOZO.nl - info@oozo.nl - Gegevens verwijderen? | Disclaimer | Privacy statement