Woning Ronsseweg 192 Gouda

Ronsseweg 192, 2803ZR Gouda

Ontvang updates voor Boerhaavekwartier

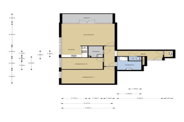
Het adres van deze woning uit 2008 is Ronsseweg 192 te Gouda. Het pand heeft een oppervlakte van 90m² en heeft 3 kamers kamers waarvan 2 slaapkamers. De geschatte waarde van deze woning is € 265.000.

Bekijk alle woningen in Boerhaavekwartier

Gegevens van Portiekflat (appartement)

Bouwjaar
2008
Geschatte waarde
€ 265.000
Oppervlakte
90 m2
Inhoud
245 m3
Aantal kamers
3 kamers
Slaapkamers
2
Badkamers
1 badkamer en 1 apart toilet
Soort bouw
Bestaande bouw
Eigendomssituatie
Volle eigendom
Ligging
Aan rustige weg en beschutte ligging
Tuin
Zonneterras

Voorzieningen in de buurt

Boodschappen0,6 km
Grote supermarkt0,7 km
Cafetaria0,6 km
Restaurant0,4 km
Huisarts0,5 km
Ziekenhuis0,4 km
Kinderdagverblijf0,6 km
BSO0,7 km
Alle voorzieningen in Boerhaavekwartier

Binnenkijken bij Ronsseweg 192 te Gouda

Meer meldingen in deze omgeving

112 melding
Vrijdag 23-1-2026 om 14:04
Bleulandweg, Gouda

112 melding
Donderdag 22-1-2026 om 23:28
Bleulandweg, Gouda

112 melding
Donderdag 22-1-2026 om 18:43
Bleulandweg, Gouda

112 melding
Donderdag 22-1-2026 om 12:24
Bleulandweg, Gouda

112 melding
Donderdag 22-1-2026 om 11:31
Anna van Hensbeeksingel, Gouda

112 melding
Donderdag 22-1-2026 om 08:56
Bleulandweg, Gouda

112 melding
Donderdag 22-1-2026 om 07:27
Bleulandweg, Gouda

Nieuw bedrijf
Januari 2026
Ronsseweg 388, 2803ZX Gouda

Direct een e-mail ontvangen bij nieuwe meldingen in deze regio?

Meld je dan GRATIS aan voor de Oozo Alert service voor Boerhaavekwartier

Instellen

Meer nieuws in Boerhaavekwartier

Weten hoe eenvoudig het is om af te vallen? Zonder pillen en smeersels en zonder je in het zweet te werken!
Kijk op eenvoudig-afvallen.nl

© 2012 - 2026 OOZO.nl - info@oozo.nl - Gegevens verwijderen? | Disclaimer | Privacy statement