Woning Bleulandweg 160 Gouda

Bleulandweg 160, 2803HH Gouda

Ontvang updates voor Boerhaavekwartier

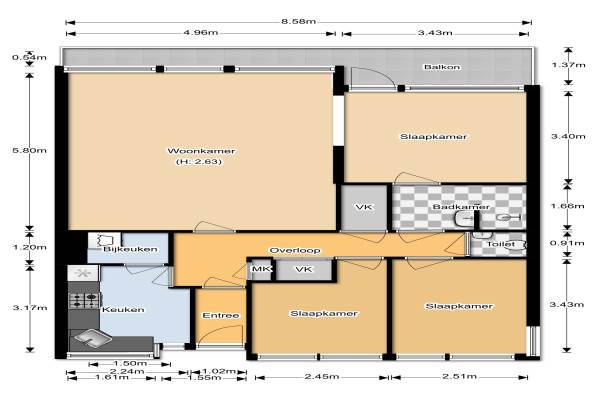
Het adres van deze woning uit 1964 is Bleulandweg 160 te Gouda. Het pand heeft een oppervlakte van 84m² en heeft 4 kamers kamers waarvan 3 slaapkamers. De geschatte waarde van deze woning is € 187.500.

Bekijk alle woningen in Boerhaavekwartier

Gegevens van Galerijflat (appartement)

Bouwjaar
1964
Geschatte waarde
€ 187.500
Oppervlakte
84 m2
Inhoud
250 m3
Aantal kamers
4 kamers
Slaapkamers
3
Badkamers
1 badkamer en 1 apart toilet
Soort bouw
Bestaande bouw
Eigendomssituatie
Volle eigendom
Ligging
Aan park, aan rustige weg, in woonwijk, vrij uitzicht en open ligging

Voorzieningen in de buurt

Boodschappen0,6 km
Grote supermarkt0,7 km
Cafetaria0,6 km
Restaurant0,4 km
Huisarts0,5 km
Ziekenhuis0,4 km
Kinderdagverblijf0,6 km
BSO0,7 km
Alle voorzieningen in Boerhaavekwartier

Binnenkijken bij Bleulandweg 160 te Gouda

Meer meldingen in deze omgeving

Binnenkijken bij
Zaterdag 14-3-2026
Anna van Hensbeeksingel 246, 2803LM Gouda

112 melding
Vrijdag 13-3-2026 om 12:46
Ronsseplein, 2803ZV Gouda

112 melding
Vrijdag 13-3-2026 om 12:46
Ronsseplein, 2803ZV Gouda

112 melding
Vrijdag 13-3-2026 om 12:45
Ronsseplein, 2803ZV Gouda

112 melding
Vrijdag 13-3-2026 om 12:43
Ronsseplein, 2803ZV Gouda

112 melding
Vrijdag 13-3-2026 om 10:56
Bleulandweg, Gouda

112 melding
Vrijdag 13-3-2026 om 03:08
Bleulandweg, Gouda

Binnenkijken bij
Vrijdag 13-3-2026
Ronsseweg 163, 2803ZT Gouda

Direct een e-mail ontvangen bij nieuwe meldingen in deze regio?

Meld je dan GRATIS aan voor de Oozo Alert service voor Boerhaavekwartier

Instellen

Meer nieuws in Boerhaavekwartier

Weten hoe eenvoudig het is om af te vallen? Zonder pillen en smeersels en zonder je in het zweet te werken!
Kijk op eenvoudig-afvallen.nl

© 2012 - 2026 OOZO.nl - info@oozo.nl - Gegevens verwijderen? | Disclaimer | Privacy statement