Woning Ambonstraat 20 Groningen

Ambonstraat 20, 9715HD Groningen

Ontvang updates voor Indische buurt

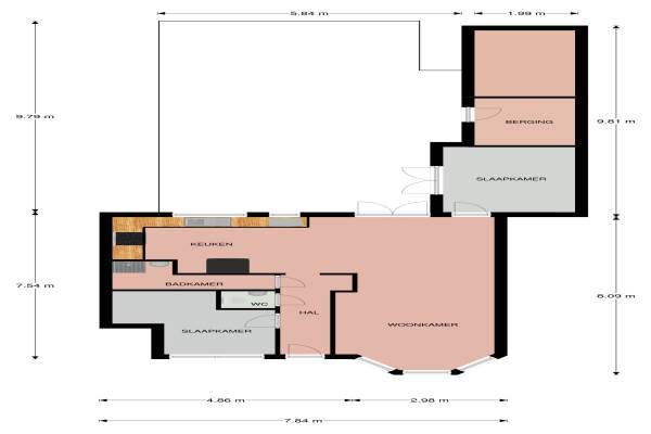
Het adres van deze woning uit 1936 is Ambonstraat 20 te Groningen. Het pand heeft een oppervlakte van 68m² en heeft 3 kamers kamers waarvan 2 slaapkamers. De geschatte waarde van deze woning is € 195.000.

Bekijk alle woningen in Indische buurt

Gegevens van Benedenwoning (appartement)

Bouwjaar
1936
Geschatte waarde
€ 195.000
Oppervlakte
68 m2
Inhoud
215 m3
Aantal kamers
3 kamers
Slaapkamers
2
Badkamers
1 badkamer en 1 apart toilet
Soort bouw
Bestaande bouw
Eigendomssituatie
Volle eigendom
Ligging
Aan rustige weg en in woonwijk
Tuin
Achtertuin
Achtertuin
55 m² (10m diep en 5,5m breed)

Voorzieningen in de buurt

Boodschappen0,3 km
Grote supermarkt0,3 km
Cafetaria0,3 km
Restaurant0,4 km
Huisarts0,4 km
Ziekenhuis1,9 km
Kinderdagverblijf0,3 km
BSO0,4 km
Alle voorzieningen in Indische buurt

Binnenkijken bij Ambonstraat 20 te Groningen

Meer meldingen in deze omgeving

Nieuw bedrijf
Oktober 2025
Celebesstraat 31, 9715JB Groningen

Nieuw bedrijf
Oktober 2025
Atjehstraat 20b, 9715EJ Groningen

Nieuw bedrijf
Oktober 2025
Bandoengstraat 30, 9715NE Groningen

Binnenkijken bij
Woensdag 29-10-2025
Padangstraat 59A, 9715CM Groningen

Binnenkijken bij
Woensdag 29-10-2025
Korreweg 266A, 9715AP Groningen

Binnenkijken bij
Woensdag 29-10-2025
Korreweg 266, 9715AP Groningen

Binnenkijken bij
Woensdag 29-10-2025
Rodeweg 24, 9715AX Groningen

Nieuw bedrijf
Oktober 2025
Fivelstraat 19a, 9715BE Groningen

Direct een e-mail ontvangen bij nieuwe meldingen in deze regio?

Meld je dan GRATIS aan voor de Oozo Alert service voor Indische buurt

Instellen

Meer nieuws in Indische buurt

Weten hoe eenvoudig het is om af te vallen? Zonder pillen en smeersels en zonder je in het zweet te werken!
Kijk op eenvoudig-afvallen.nl

© 2012 - 2025 OOZO.nl - info@oozo.nl - Gegevens verwijderen? | Disclaimer | Privacy statement