Woning Hamburgerstraat 2a Groningen

Hamburgerstraat 2a, 9714JB Groningen

Ontvang updates voor Professorenbuurt

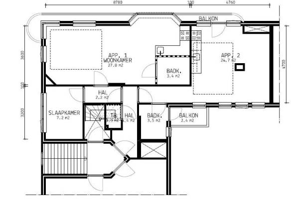
Het adres van deze woning is Hamburgerstraat 2a te Groningen. Het pand heeft een oppervlakte van 72m² en heeft 4 kamers kamers waarvan 4 slaapkamers. De geschatte waarde van deze woning is € 215.000.

Bekijk alle woningen in Professorenbuurt

Gegevens van Tussenverdieping (appartement)

Geschatte waarde
€ 215.000
Oppervlakte
72 m2
Inhoud
195 m3
Aantal kamers
4 kamers
Slaapkamers
4
Badkamers
1 badkamer en 1 apart toilet
Soort bouw
Bestaande bouw
Eigendomssituatie
Volle eigendom
Ligging
In woonwijk en vrij uitzicht

Voorzieningen in de buurt

Boodschappen0,3 km
Grote supermarkt0,4 km
Cafetaria0,3 km
Restaurant0,3 km
Huisarts0,5 km
Ziekenhuis1,5 km
Kinderdagverblijf0,3 km
BSO0,3 km
Alle voorzieningen in Professorenbuurt

Binnenkijken bij Hamburgerstraat 2a te Groningen

Meer meldingen in deze omgeving

Binnenkijken bij
Vrijdag 9-1-2026
J.C. Kapteynlaan 3A, 9714CL Groningen

Binnenkijken bij
Zaterdag 3-1-2026
Korreweg 21133, 9714AL Groningen

112 melding
Donderdag 1-1-2026 om 03:51
Antillenstraat, 9714JT Groningen

Nieuw bedrijf
Januari 2026
Star Numanstraat 46c, 9714JS Groningen

Nieuw bedrijf
Januari 2026
Heymanslaan 49, 9714GJ Groningen

Nieuw bedrijf
Januari 2026
Tellegenstraat 4a, 9714GD Groningen

Nieuw bedrijf
Januari 2026
Oosterhamrikkade 106g, 9714BJ Groningen

Nieuw bedrijf
Januari 2026
Bloemsingel 161, 9714DS Groningen

Direct een e-mail ontvangen bij nieuwe meldingen in deze regio?

Meld je dan GRATIS aan voor de Oozo Alert service voor Professorenbuurt

Instellen

Meer nieuws in Professorenbuurt

Weten hoe eenvoudig het is om af te vallen? Zonder pillen en smeersels en zonder je in het zweet te werken!
Kijk op eenvoudig-afvallen.nl

© 2012 - 2026 OOZO.nl - info@oozo.nl - Gegevens verwijderen? | Disclaimer | Privacy statement