Woning Croesenstraat 53 Haarlem

Croesenstraat 53, 2015JK Haarlem

Ontvang updates voor Ramplaankwartier

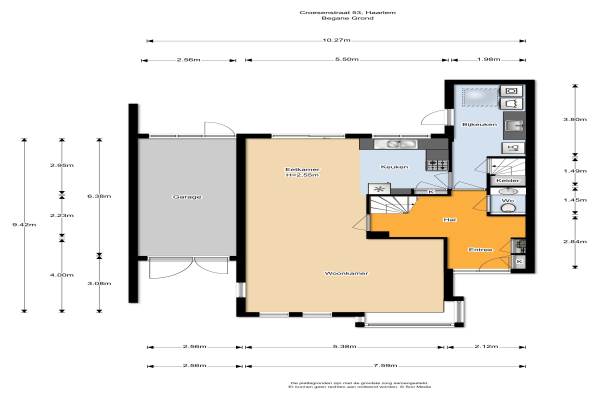
Het adres van deze woning uit 1989 is Croesenstraat 53 te Haarlem. Het pand heeft een oppervlakte van 169m² en een perceeloppervlakte van 282m² en heeft 6 kamers kamers waarvan 5 slaapkamers. De geschatte waarde van deze woning is € 775.000.

Bekijk alle woningen in Ramplaankwartier

Gegevens van Eengezinswoning, hoekwoning

Bouwjaar
1989
Geschatte waarde
€ 775.000
Oppervlakte
169 m2
Inhoud
665 m3
Aantal kamers
6 kamers
Slaapkamers
5
Badkamers
1 badkamer en 1 apart toilet
Soort bouw
Bestaande bouw
Eigendomssituatie
Volle eigendom
Ligging
Aan rustige weg, in woonwijk en in bosrijke omgeving
Tuin
Achtertuin en voortuin
Achtertuin
139 m² (17,35m diep en 8m breed)

Voorzieningen in de buurt

Boodschappen0,3 km
Grote supermarkt0,3 km
Cafetaria1,1 km
Restaurant0,3 km
Huisarts0,4 km
Ziekenhuis4,2 km
Kinderdagverblijf0,3 km
BSO0,3 km
Alle voorzieningen in Ramplaankwartier

Binnenkijken bij Croesenstraat 53 te Haarlem

Meer meldingen in deze omgeving

112 melding
Donderdag 13-11-2025 om 10:47
Rockaertshof, 2015ED Haarlem

112 melding
Woensdag 12-11-2025 om 08:39
Van Twiskplein, 2015HS Haarlem

Binnenkijken bij
Dinsdag 11-11-2025
Dickmansstraat 24, 2015JC Haarlem

112 melding
Maandag 10-11-2025 om 07:48
Witte van Haemstedelaan, 2015EZ Haarlem

112 melding
Maandag 10-11-2025 om 07:48
Witte van Haemstedelaan, 2015EZ Haarlem

112 melding
Zaterdag 8-11-2025 om 17:04
Hospeslaan, Haarlem

112 melding
Zaterdag 8-11-2025 om 16:06
Zuider Tuindorpslaan, Haarlem

112 melding
Zaterdag 8-11-2025 om 16:06
Zuider Tuindorpslaan, Haarlem

Direct een e-mail ontvangen bij nieuwe meldingen in deze regio?

Meld je dan GRATIS aan voor de Oozo Alert service voor Ramplaankwartier

Instellen

Meer nieuws in Ramplaankwartier

Weten hoe eenvoudig het is om af te vallen? Zonder pillen en smeersels en zonder je in het zweet te werken!
Kijk op eenvoudig-afvallen.nl

© 2012 - 2025 OOZO.nl - info@oozo.nl - Gegevens verwijderen? | Disclaimer | Privacy statement