Woning Kleine Houtstraat 21 Haarlem

Kleine Houtstraat 21, 2011DD Haarlem

Ontvang updates voor Binnenstad

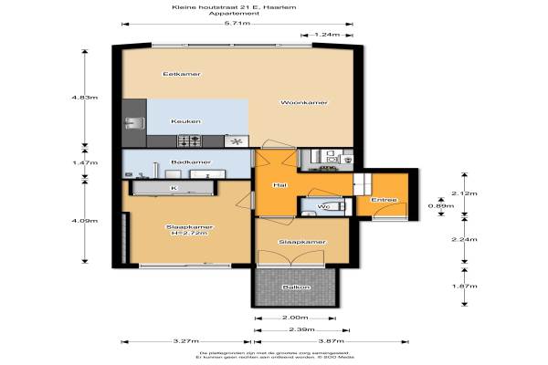
Het adres van deze woning uit 1880 is Kleine Houtstraat 21 te Haarlem. Het pand heeft een oppervlakte van 65m² en heeft 3 kamers kamers waarvan 2 slaapkamers. De geschatte waarde van deze woning is € 375.000.

Bekijk alle woningen in Binnenstad

Gegevens van Bovenwoning (appartement)

Bouwjaar
1880
Geschatte waarde
€ 375.000
Oppervlakte
65 m2
Inhoud
230 m3
Aantal kamers
3 kamers
Slaapkamers
2
Badkamers
1 badkamer en 1 apart toilet
Soort bouw
Bestaande bouw
Eigendomssituatie
Volle eigendom
Ligging
In centrum

Voorzieningen in de buurt

Boodschappen0,1 km
Grote supermarkt0,3 km
Cafetaria0,1 km
Restaurant0,1 km
Huisarts0,2 km
Ziekenhuis2,6 km
Kinderdagverblijf0,3 km
BSO0,6 km
Alle voorzieningen in Binnenstad

Binnenkijken bij Kleine Houtstraat 21 te Haarlem

Meer meldingen in deze omgeving

Nieuw bedrijf
Januari 2026
Spaarne 108, 2011CM Haarlem

112 melding
Zondag 18-1-2026 om 04:04
Lange Veerstraat, Haarlem

112 melding
Zaterdag 17-1-2026 om 04:05
Lange Veerstraat, Haarlem

112 melding
Zaterdag 17-1-2026 om 01:19
Lange Veerstraat, Haarlem

Binnenkijken bij
Zaterdag 17-1-2026
Nassaulaan 17C, 2011PB Haarlem

Binnenkijken bij
Donderdag 15-1-2026
Korte Zijlstraat 14, 2011TZ Haarlem

Binnenkijken bij
Donderdag 15-1-2026
Zijlstraat 20C, 2011TN Haarlem

Binnenkijken bij
Donderdag 15-1-2026
Koningstraat 20C, 2011TD Haarlem

Direct een e-mail ontvangen bij nieuwe meldingen in deze regio?

Meld je dan GRATIS aan voor de Oozo Alert service voor Binnenstad

Instellen

Meer nieuws in Binnenstad

Weten hoe eenvoudig het is om af te vallen? Zonder pillen en smeersels en zonder je in het zweet te werken!
Kijk op eenvoudig-afvallen.nl

© 2012 - 2026 OOZO.nl - info@oozo.nl - Gegevens verwijderen? | Disclaimer | Privacy statement