Woning Skagerrak 130 Hoofddorp

Skagerrak 130, 2133DV Hoofddorp

Ontvang updates voor Hoofddorp Bornholm Oost

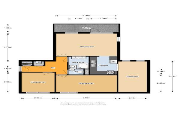
Het adres van deze woning uit 1979 is Skagerrak 130 te Hoofddorp. Het pand heeft een oppervlakte van 87m² en heeft 4 kamers kamers waarvan 3 slaapkamers. De geschatte waarde van deze woning is € 209.000.

Bekijk alle woningen in Hoofddorp Bornholm Oost

Gegevens van Galerijflat

Bouwjaar
1979
Geschatte waarde
€ 209.000
Oppervlakte
87 m2
Inhoud
275 m3
Aantal kamers
4 kamers
Slaapkamers
3
Badkamers
1 badkamer en 1 apart toilet
Soort bouw
Bestaande bouw
Eigendomssituatie
Volle eigendom
Ligging
Aan rustige weg en vrij uitzicht

Voorzieningen in de buurt

Boodschappen0,7 km
Grote supermarkt0,7 km
Cafetaria0,6 km
Restaurant1,2 km
Huisarts0,6 km
Ziekenhuis3,1 km
Kinderdagverblijf0,6 km
BSO0,6 km
Alle voorzieningen in Hoofddorp Bornholm Oost

Binnenkijken bij Skagerrak 130 te Hoofddorp

Meer meldingen in deze omgeving

112 melding
Vrijdag 28-11-2025 om 08:34
Lindholm, Hoofddorp

112 melding
Donderdag 27-11-2025 om 13:27
Adrianahoeve, 2131MN Hoofddorp

112 melding
Woensdag 26-11-2025 om 09:42
Houtwijkerveld, Hoofddorp

112 melding
Zaterdag 22-11-2025 om 03:07
Birkholm, Hoofddorp

112 melding
Vrijdag 21-11-2025 om 12:51
Skagerrak, Hoofddorp

Nieuw bedrijf
November 2025
Birkholm 125, 2133CC Hoofddorp

Nieuw bedrijf
November 2025
Lindholm 135, 2133CP Hoofddorp

112 melding
Donderdag 20-11-2025 om 15:33
Rosenholm, Hoofddorp

Direct een e-mail ontvangen bij nieuwe meldingen in deze regio?

Meld je dan GRATIS aan voor de Oozo Alert service voor Hoofddorp Bornholm Oost

Instellen

Meer nieuws in Hoofddorp Bornholm Oost

Weten hoe eenvoudig het is om af te vallen? Zonder pillen en smeersels en zonder je in het zweet te werken!
Kijk op eenvoudig-afvallen.nl

© 2012 - 2025 OOZO.nl - info@oozo.nl - Gegevens verwijderen? | Disclaimer | Privacy statement