Woning Westhove 71 Hoofddorp

Westhove 71, 2134VP Hoofddorp

Ontvang updates voor Hoofddorp Floriande West

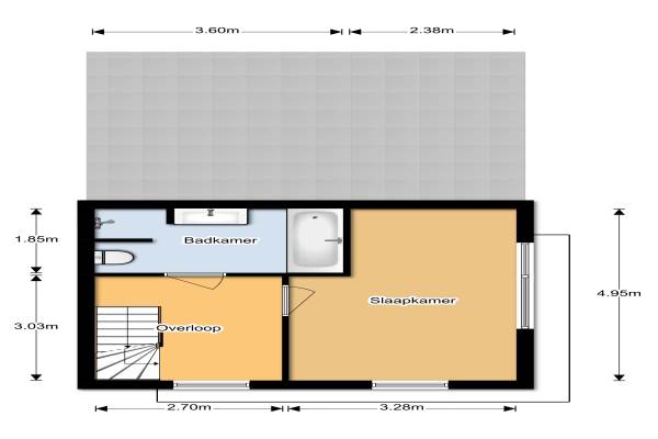
Het adres van deze woning uit 2003 is Westhove 71 te Hoofddorp. Het pand heeft een oppervlakte van 162m² en een perceeloppervlakte van 275m² en heeft 4 kamers kamers waarvan 3 slaapkamers. De geschatte waarde van deze woning is € 450.000.

Bekijk alle woningen in Hoofddorp Floriande West

Gegevens van Herenhuis, geschakelde woning

Bouwjaar
2003
Geschatte waarde
€ 450.000
Oppervlakte
162 m2
Inhoud
580 m3
Aantal kamers
4 kamers
Slaapkamers
3
Badkamers
1 badkamer en 2 aparte toiletten
Soort bouw
Bestaande bouw
Eigendomssituatie
Volle eigendom
Ligging
Aan rustige weg, in woonwijk, vrij uitzicht en open ligging
Tuin
Achtertuin en voortuin
Achtertuin
99 m² (10,17m diep en 9,75m breed)

Voorzieningen in de buurt

Boodschappen1,2 km
Grote supermarkt1,2 km
Cafetaria1,1 km
Restaurant1,0 km
Huisarts0,9 km
Ziekenhuis2,4 km
Kinderdagverblijf0,6 km
BSO0,6 km
Alle voorzieningen in Hoofddorp Floriande West

Binnenkijken bij Westhove 71 te Hoofddorp

Meer meldingen in deze omgeving

112 melding
Donderdag 13-11-2025 om 16:46
Waddenweg, 2134XL Hoofddorp

112 melding
Donderdag 13-11-2025 om 16:45
Waddenweg, 2134XL Hoofddorp

112 melding
Donderdag 13-11-2025 om 12:31
Spaarnepoort, 2134TM Hoofddorp

112 melding
Donderdag 13-11-2025 om 12:20
Spaarnepoort, 2134TM Hoofddorp

112 melding
Woensdag 12-11-2025 om 23:19
Spaarnepoort, 2134TM Hoofddorp

112 melding
Woensdag 12-11-2025 om 11:47
Spaarnepoort, 2134TM Hoofddorp

112 melding
Dinsdag 11-11-2025 om 23:16
Spaarnepoort, 2134TM Hoofddorp

112 melding
Dinsdag 11-11-2025 om 22:58
Spaarnepoort, 2134TM Hoofddorp

Direct een e-mail ontvangen bij nieuwe meldingen in deze regio?

Meld je dan GRATIS aan voor de Oozo Alert service voor Hoofddorp Floriande West

Instellen

Meer nieuws in Hoofddorp Floriande West

Weten hoe eenvoudig het is om af te vallen? Zonder pillen en smeersels en zonder je in het zweet te werken!
Kijk op eenvoudig-afvallen.nl

© 2012 - 2025 OOZO.nl - info@oozo.nl - Gegevens verwijderen? | Disclaimer | Privacy statement