Woning Twentestraat 68 Heemskerk

Twentestraat 68, 1966PP Heemskerk

Ontvang updates voor Zuidbroek

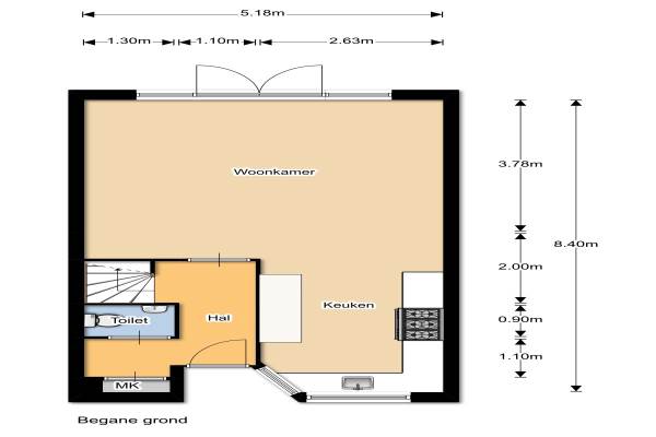
Het adres van deze woning uit 1990 is Twentestraat 68 te Heemskerk. Het pand heeft een oppervlakte van 90m² en een perceeloppervlakte van 144m² en heeft 5 kamers kamers waarvan 3 slaapkamers. De geschatte waarde van deze woning is € 249.000.

Bekijk alle woningen in Zuidbroek

Gegevens van Eengezinswoning, tussenwoning

Bouwjaar
1990
Geschatte waarde
€ 249.000
Oppervlakte
90 m2
Inhoud
285 m3
Aantal kamers
5 kamers
Slaapkamers
3
Badkamers
1 badkamer en 1 apart toilet
Soort bouw
Bestaande bouw
Eigendomssituatie
Volle eigendom
Ligging
Aan rustige weg, in woonwijk en vrij uitzicht
Tuin
Achtertuin en voortuin
Achtertuin
76 m² (14m diep en 5,4m breed)

Voorzieningen in de buurt

Boodschappen0,8 km
Grote supermarkt0,5 km
Cafetaria0,6 km
Restaurant0,8 km
Huisarts0,5 km
Ziekenhuis3,5 km
Kinderdagverblijf0,6 km
BSO0,7 km
Alle voorzieningen in Zuidbroek

Binnenkijken bij Twentestraat 68 te Heemskerk

Meer meldingen in deze omgeving

Nieuw bedrijf
December 2025
Euratomplein 79, 1966SP Heemskerk

112 melding
Zondag 7-12-2025 om 09:51
Kennemerlandstraat, Heemskerk

112 melding
Zondag 7-12-2025 om 09:51
Kennemerlandstraat, Heemskerk

112 melding
Donderdag 4-12-2025 om 15:01
Duitslandlaan, 1966XA Heemskerk

112 melding
Donderdag 4-12-2025 om 15:01
Duitslandlaan, 1966XA Heemskerk

112 melding
Donderdag 4-12-2025 om 10:22
Duitslandlaan, 1966XA Heemskerk

Nieuw bedrijf
December 2025
Luxemburglaan 921, 1966MX Heemskerk

112 melding
Woensdag 3-12-2025 om 13:28
Ardennenlaan, 1966RT Heemskerk

Direct een e-mail ontvangen bij nieuwe meldingen in deze regio?

Meld je dan GRATIS aan voor de Oozo Alert service voor Zuidbroek

Instellen

Meer nieuws in Zuidbroek

Weten hoe eenvoudig het is om af te vallen? Zonder pillen en smeersels en zonder je in het zweet te werken!
Kijk op eenvoudig-afvallen.nl

© 2012 - 2025 OOZO.nl - info@oozo.nl - Gegevens verwijderen? | Disclaimer | Privacy statement