Woning De Heugden 24 Heerlen

De Heugden 24, 6411DL Heerlen

Ontvang updates voor Eikenderveld

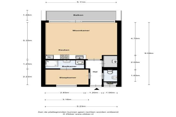
Het adres van deze woning uit 1978 is De Heugden 24 te Heerlen. Het pand heeft een oppervlakte van 47m² en heeft 3 kamers kamers waarvan 1 slaapkamers. De geschatte waarde van deze woning is € 76.000.

Bekijk alle woningen in Eikenderveld

Gegevens van Galerijflat

Bouwjaar
1978
Geschatte waarde
€ 76.000
Oppervlakte
47 m2
Inhoud
145 m3
Aantal kamers
3 kamers
Slaapkamers
1
Badkamers
1 badkamer en 1 apart toilet
Soort bouw
Bestaande bouw
Eigendomssituatie
Volle eigendom

Voorzieningen in de buurt

Boodschappen0,3 km
Grote supermarkt0,9 km
Cafetaria0,3 km
Restaurant0,8 km
Huisarts1,4 km
Ziekenhuis3,6 km
Kinderdagverblijf0,4 km
BSO1,5 km
Alle voorzieningen in Eikenderveld

Binnenkijken bij De Heugden 24 te Heerlen

Meer meldingen in deze omgeving

Binnenkijken bij
Zaterdag 27-9-2025
De Heugden 42, 6411DL Heerlen

Binnenkijken bij
Vrijdag 26-9-2025
De Heugden 336, 6411DX Heerlen

112 melding
Maandag 22-9-2025 om 13:06
Landvoogdstraat, 6411XA Heerlen

Nieuw bedrijf
September 2025
Pater Beatusstraat 5, 6411TR Heerlen

Nieuw bedrijf
September 2025
Pater Beatusstraat 5, 6411TR Heerlen

Nieuw bedrijf
September 2025
Koningstraat 46, 6411XE Heerlen

Nieuw bedrijf
September 2025
Laanderstraat 128, 6411VE Heerlen

Nieuw bedrijf
September 2025
Pater Beatusstraat 5, 6411TR Heerlen

Direct een e-mail ontvangen bij nieuwe meldingen in deze regio?

Meld je dan GRATIS aan voor de Oozo Alert service voor Eikenderveld

Instellen

Meer nieuws in Eikenderveld

Weten hoe eenvoudig het is om af te vallen? Zonder pillen en smeersels en zonder je in het zweet te werken!
Kijk op eenvoudig-afvallen.nl

© 2012 - 2025 OOZO.nl - info@oozo.nl - Gegevens verwijderen? | Disclaimer | Privacy statement