Woning Laan van Zeeman 25 Heiloo

Laan van Zeeman 25, 1851SB Heiloo

Ontvang updates voor Plan Oost

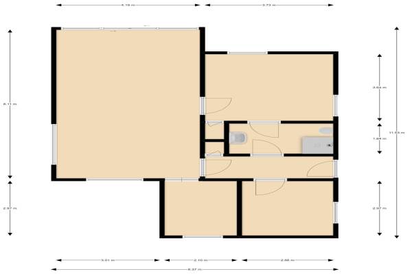
Het adres van deze woning uit 1960 is Laan van Zeeman 25 te Heiloo. Het pand heeft een oppervlakte van 107m² en een perceeloppervlakte van 668m² en heeft 4 kamers kamers waarvan 2 slaapkamers. De geschatte waarde van deze woning is € 525.000.

Bekijk alle woningen in Plan Oost

Gegevens van Eengezinswoning, vrijstaande woning

Bouwjaar
1960
Geschatte waarde
€ 525.000
Oppervlakte
107 m2
Inhoud
275 m3
Aantal kamers
4 kamers
Slaapkamers
2
Badkamers
1 badkamer en 1 apart toilet
Soort bouw
Bestaande bouw
Eigendomssituatie
Volle eigendom
Ligging
Aan bosrand, aan rustige weg, in woonwijk, beschutte ligging en in bosrijke omgeving
Tuin
Tuin rondom

Voorzieningen in de buurt

Boodschappen0,8 km
Grote supermarkt0,8 km
Cafetaria0,6 km
Restaurant0,6 km
Huisarts1,9 km
Ziekenhuis3,5 km
Kinderdagverblijf0,4 km
BSO0,4 km
Alle voorzieningen in Plan Oost

Binnenkijken bij Laan van Zeeman 25 te Heiloo

Meer meldingen in deze omgeving

112 melding
Maandag 30-3-2026 om 15:34
Kennemerstraatweg, 1851BK Heiloo

112 melding
Maandag 30-3-2026 om 08:22
E.J. Potgieterweg, 1851CG Heiloo

112 melding
Maandag 30-3-2026 om 08:22
E.J. Potgieterweg, 1851CG Heiloo

112 melding
Maandag 30-3-2026 om 07:09
E.J. Potgieterweg, 1851CG Heiloo

112 melding
Zaterdag 28-3-2026 om 18:17
De Loet, 1851CR Heiloo

112 melding
Donderdag 26-3-2026 om 17:14
Kleijne Olven, 1851CW Heiloo

112 melding
Woensdag 25-3-2026 om 15:22
Dokterslaan, 1851BT Heiloo

Binnenkijken bij
Zondag 22-3-2026
De Nieuwe Plantagie 10, 1851EA Heiloo

Direct een e-mail ontvangen bij nieuwe meldingen in deze regio?

Meld je dan GRATIS aan voor de Oozo Alert service voor Plan Oost

Instellen

Meer nieuws in Plan Oost

Weten hoe eenvoudig het is om af te vallen? Zonder pillen en smeersels en zonder je in het zweet te werken!
Kijk op eenvoudig-afvallen.nl

© 2012 - 2026 OOZO.nl - info@oozo.nl - Gegevens verwijderen? | Disclaimer | Privacy statement