Woning Henry Dunantstraat 43 Hengelo

Henry Dunantstraat 43, 7552DG Hengelo

Ontvang updates voor Anninks-/Nijhofshoek

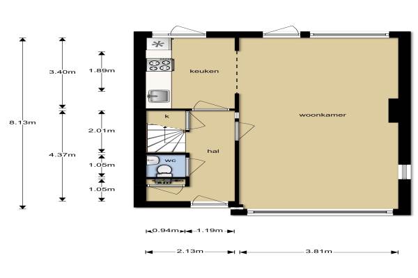
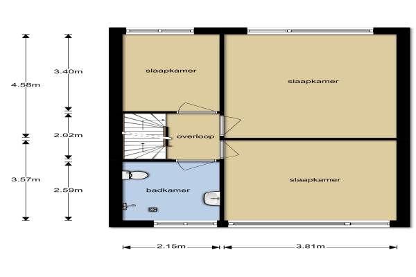
Het adres van deze woning uit 1968 is Henry Dunantstraat 43 te Hengelo. Het pand heeft een oppervlakte van 126m² en een perceeloppervlakte van 276m² en heeft 5 kamers kamers waarvan 4 slaapkamers. De geschatte waarde van deze woning is € 199.500.

Bekijk alle woningen in Anninks-/Nijhofshoek

Gegevens van Eengezinswoning, hoekwoning

Bouwjaar
1968
Geschatte waarde
€ 199.500
Oppervlakte
126 m2
Inhoud
375 m3
Aantal kamers
5 kamers
Slaapkamers
4
Badkamers
1 badkamer en 1 apart toilet
Soort bouw
Bestaande bouw
Eigendomssituatie
Volle eigendom
Ligging
Aan rustige weg en in woonwijk
Tuin
Achtertuin, voortuin en zijtuin
Achtertuin
120 m² (15m diep en 8m breed)

Voorzieningen in de buurt

Boodschappen0,4 km
Grote supermarkt0,5 km
Cafetaria0,9 km
Restaurant0,9 km
Huisarts0,3 km
Ziekenhuis3,4 km
Kinderdagverblijf0,4 km
BSO0,4 km
Alle voorzieningen in Anninks-/Nijhofshoek

Binnenkijken bij Henry Dunantstraat 43 te Hengelo

Meer meldingen in deze omgeving

Nieuw bedrijf
Februari 2026
Enschedesestraat 336, 7552CN Hengelo

Binnenkijken bij
Maandag 16-2-2026
Hennepstraat 58, 7552DN Hengelo (OV)

Binnenkijken bij
Zaterdag 7-2-2026
Egstraat 23, 7552ES Hengelo (OV)

112 melding
Maandag 2-2-2026 om 13:26
Egstraat, 7552ES Hengelo

112 melding
Zondag 1-2-2026 om 12:09
Hennepstraat, 7552DN Hengelo

112 melding
Zaterdag 31-1-2026 om 12:08
Hennepstraat, 7552DN Hengelo

112 melding
Zaterdag 31-1-2026 om 12:06
Hennepstraat, 7552DN Hengelo

112 melding
Donderdag 29-1-2026 om 19:31
Laan van Driene, 7552EN Hengelo

Direct een e-mail ontvangen bij nieuwe meldingen in deze regio?

Meld je dan GRATIS aan voor de Oozo Alert service voor Anninks-/Nijhofshoek

Instellen

Meer nieuws in Anninks-/Nijhofshoek

Weten hoe eenvoudig het is om af te vallen? Zonder pillen en smeersels en zonder je in het zweet te werken!
Kijk op eenvoudig-afvallen.nl

© 2012 - 2026 OOZO.nl - info@oozo.nl - Gegevens verwijderen? | Disclaimer | Privacy statement