Woning Buitenweg 7 Hengelo

Buitenweg 7, 7553BA Hengelo

Ontvang updates voor Tuindorp 't Lansink

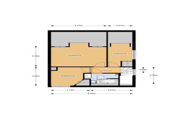
Het adres van deze woning uit 1915 is Buitenweg 7 te Hengelo. Het pand heeft een oppervlakte van 102m² en een perceeloppervlakte van 298m² en heeft 4 kamers kamers waarvan 3 slaapkamers. De geschatte waarde van deze woning is € 295.000.

Bekijk alle woningen in Tuindorp 't Lansink

Gegevens van Eengezinswoning, 2-onder-1-kapwoning

Bouwjaar
1915
Geschatte waarde
€ 295.000
Oppervlakte
102 m2
Inhoud
417 m3
Aantal kamers
4 kamers
Slaapkamers
3
Badkamers
1 badkamer en 1 apart toilet
Soort bouw
Bestaande bouw
Eigendomssituatie
Volle eigendom
Ligging
Aan rustige weg en in woonwijk
Tuin
Achtertuin, voortuin, zijtuin en zonneterras
Achtertuin
189 m² (14m diep en 13,5m breed)

Voorzieningen in de buurt

Boodschappen0,3 km
Grote supermarkt0,5 km
Cafetaria0,3 km
Restaurant0,3 km
Huisarts1,2 km
Ziekenhuis1,5 km
Kinderdagverblijf0,4 km
BSO0,3 km
Alle voorzieningen in Tuindorp 't Lansink

Binnenkijken bij Buitenweg 7 te Hengelo

Meer meldingen in deze omgeving

Nieuw bedrijf
Oktober 2025
Industriestraat 218A, 7553CX Hengelo

Binnenkijken bij
Woensdag 29-10-2025
Ainsworthstraat 5, 7553AD Hengelo (OV)

Binnenkijken bij
Woensdag 29-10-2025
Industriestraat 78, 7553CS Hengelo (OV)

Binnenkijken bij
Woensdag 29-10-2025
Willem de Clercqstraat 45, 7553VA Hengelo (OV)

112 melding
Zondag 26-10-2025 om 18:09
Lansinkesweg, 7553AE Hengelo

112 melding
Woensdag 22-10-2025 om 20:43
Lansinkesweg, 7553AE Hengelo

112 melding
Woensdag 22-10-2025 om 13:15
Lansinkesweg, 7553AE Hengelo

Binnenkijken bij
Zondag 19-10-2025
Kerkstraat 17, 7553VS Hengelo (OV)

Direct een e-mail ontvangen bij nieuwe meldingen in deze regio?

Meld je dan GRATIS aan voor de Oozo Alert service voor Tuindorp 't Lansink

Instellen

Meer nieuws in Tuindorp 't Lansink

Weten hoe eenvoudig het is om af te vallen? Zonder pillen en smeersels en zonder je in het zweet te werken!
Kijk op eenvoudig-afvallen.nl

© 2012 - 2025 OOZO.nl - info@oozo.nl - Gegevens verwijderen? | Disclaimer | Privacy statement