Woning Bizetlaan 12 Vlijmen

Bizetlaan 12, 5251HA Vlijmen

Ontvang updates voor Vijfhoeven

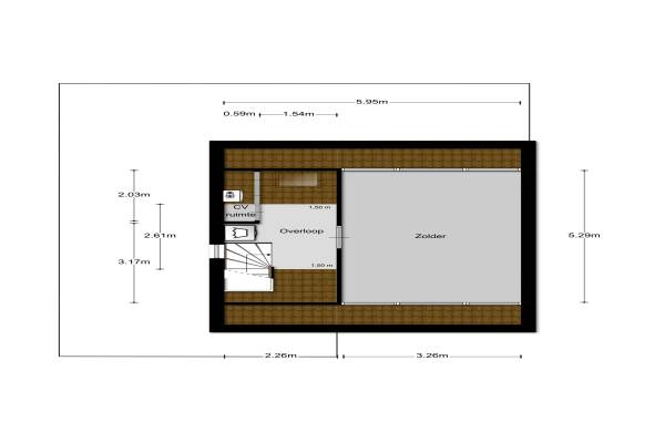
Het adres van deze woning uit 1971 is Bizetlaan 12 te Vlijmen. Het pand heeft een oppervlakte van 135m² en een perceeloppervlakte van 219m² en heeft 4 kamers kamers waarvan 3 slaapkamers. De geschatte waarde van deze woning is € 335.000.

Bekijk alle woningen in Vijfhoeven

Gegevens van Eengezinswoning, 2-onder-1-kapwoning

Bouwjaar
1971
Geschatte waarde
€ 335.000
Oppervlakte
135 m2
Inhoud
553 m3
Aantal kamers
4 kamers
Slaapkamers
3
Badkamers
1 badkamer en 1 apart toilet
Soort bouw
Bestaande bouw
Eigendomssituatie
Volle eigendom
Ligging
Aan rustige weg en in woonwijk
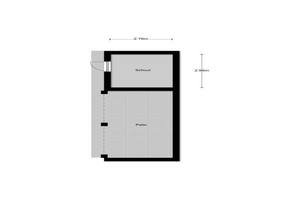
Tuin
Achtertuin
Achtertuin
81 m² (9m diep en 9m breed)

Voorzieningen in de buurt

Boodschappen1,0 km
Grote supermarkt1,1 km
Cafetaria0,9 km
Restaurant0,9 km
Huisarts0,8 km
Ziekenhuis5,7 km
Kinderdagverblijf0,6 km
BSO0,6 km
Alle voorzieningen in Vijfhoeven

Binnenkijken bij Bizetlaan 12 te Vlijmen

Meer meldingen in deze omgeving

Binnenkijken bij
Vrijdag 14-11-2025
Spaaklaan 36, 5252BD Vlijmen

Binnenkijken bij
Vrijdag 14-11-2025
Zijlstralaan 39, 5251SE Vlijmen

Nieuw bedrijf
November 2025
Marijnenlaan 54, 5251SC Vlijmen

Binnenkijken bij
Dinsdag 11-11-2025
Egel 1, 5251GM Vlijmen

Binnenkijken bij
Dinsdag 11-11-2025
Asserlaan 9, 5251XH Vlijmen

Binnenkijken bij
Dinsdag 11-11-2025
Van Agtlaan 15, 5251SG Vlijmen

Binnenkijken bij
Dinsdag 11-11-2025
Van Agtlaan 12, 5251SH Vlijmen

Binnenkijken bij
Donderdag 30-10-2025
Beellaan 12, 5251SM Vlijmen

Direct een e-mail ontvangen bij nieuwe meldingen in deze regio?

Meld je dan GRATIS aan voor de Oozo Alert service voor Vijfhoeven

Instellen

Meer nieuws in Vijfhoeven

Weten hoe eenvoudig het is om af te vallen? Zonder pillen en smeersels en zonder je in het zweet te werken!
Kijk op eenvoudig-afvallen.nl

© 2012 - 2025 OOZO.nl - info@oozo.nl - Gegevens verwijderen? | Disclaimer | Privacy statement