Woning Kleine Drift 77 Hilversum

Kleine Drift 77, 1221JZ Hilversum

Ontvang updates voor Kleine Driftbuurt

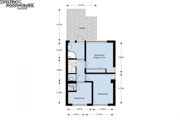
Het adres van deze woning uit 1905 is Kleine Drift 77 te Hilversum. Het pand heeft een oppervlakte van 86m² en een perceeloppervlakte van 130m² en heeft 4 kamers kamers waarvan 3 slaapkamers. De geschatte waarde van deze woning is € 239.500.

Bekijk alle woningen in Kleine Driftbuurt

Gegevens van Eengezinswoning, hoekwoning

Bouwjaar
1905
Geschatte waarde
€ 239.500
Oppervlakte
86 m2
Inhoud
306 m3
Aantal kamers
4 kamers
Slaapkamers
3
Badkamers
1 badkamer en 1 apart toilet
Soort bouw
Bestaande bouw
Eigendomssituatie
Volle eigendom
Ligging
Aan rustige weg en in woonwijk
Tuin
Achtertuin en voortuin
Achtertuin
30 m² (6m diep en 5m breed)

Voorzieningen in de buurt

Boodschappen0,3 km
Grote supermarkt0,4 km
Cafetaria0,2 km
Restaurant0,2 km
Huisarts0,9 km
Ziekenhuis1,5 km
Kinderdagverblijf0,4 km
BSO0,6 km
Alle voorzieningen in Kleine Driftbuurt

Binnenkijken bij Kleine Drift 77 te Hilversum

Meer meldingen in deze omgeving

Nieuw bedrijf
November 2025
Kleine Drift 69B, 1221JZ Hilversum

Binnenkijken bij
Dinsdag 25-11-2025
Lorentzweg 24, 1221EH Hilversum

Binnenkijken bij
Dinsdag 25-11-2025
Bordetstraat 10, 1221HW Hilversum

Faillissement
Maandag 24-11-2025
Zilvermeeuwstraat 2, 1221KL Hilversum

Nieuw bedrijf
November 2025
Professor De Jongstraat 23, 1221HX Hilversum

112 melding
Zondag 16-11-2025 om 21:50
Prof. Kochstraat, Hilversum

112 melding
Zondag 16-11-2025 om 21:50
Prof. Kochstraat, Hilversum

Nieuw bedrijf
November 2025
Lijsterweg 21, 1221JG Hilversum

Direct een e-mail ontvangen bij nieuwe meldingen in deze regio?

Meld je dan GRATIS aan voor de Oozo Alert service voor Kleine Driftbuurt

Instellen

Meer nieuws in Kleine Driftbuurt

Weten hoe eenvoudig het is om af te vallen? Zonder pillen en smeersels en zonder je in het zweet te werken!
Kijk op eenvoudig-afvallen.nl

© 2012 - 2025 OOZO.nl - info@oozo.nl - Gegevens verwijderen? | Disclaimer | Privacy statement