Woning Kolhornseweg 124 Hilversum

Kolhornseweg 124, 1215RK Hilversum

Ontvang updates voor Zeeheldenkwartier

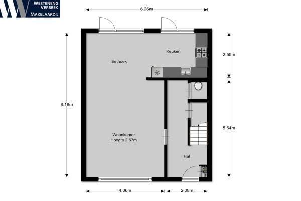
Het adres van deze woning uit 1957 is Kolhornseweg 124 te Hilversum. Het pand heeft een oppervlakte van 131m² en een perceeloppervlakte van 179m² en heeft 5 kamers kamers waarvan 4 slaapkamers. De geschatte waarde van deze woning is € 439.500.

Bekijk alle woningen in Zeeheldenkwartier

Gegevens van Eengezinswoning, tussenwoning

Bouwjaar
1957
Geschatte waarde
€ 439.500
Oppervlakte
131 m2
Inhoud
444 m3
Aantal kamers
5 kamers
Slaapkamers
4
Badkamers
1 badkamer en 2 aparte toiletten
Soort bouw
Bestaande bouw
Eigendomssituatie
Volle eigendom
Ligging
Aan bosrand, in woonwijk, vrij uitzicht en in bosrijke omgeving
Tuin
Achtertuin en voortuin
Achtertuin
69 m² (11,5m diep en 6m breed)

Voorzieningen in de buurt

Boodschappen0,4 km
Grote supermarkt0,4 km
Cafetaria0,4 km
Restaurant0,4 km
Huisarts1,1 km
Ziekenhuis3,7 km
Kinderdagverblijf0,3 km
BSO0,4 km
Alle voorzieningen in Zeeheldenkwartier

Binnenkijken bij Kolhornseweg 124 te Hilversum

Meer meldingen in deze omgeving

Nieuw bedrijf
Februari 2026
Van Neslaan 13, 1215PL Hilversum

Binnenkijken bij
Donderdag 19-2-2026
Van Kinsbergenlaan 11, 1215RN Hilversum

112 melding
Dinsdag 17-2-2026 om 19:29
Karel Doormanlaan, Hilversum

112 melding
Donderdag 12-2-2026 om 08:17
Van Speijklaan, Hilversum

Binnenkijken bij
Woensdag 11-2-2026
Karel Doormanlaan 208, 1215NT Hilversum

Binnenkijken bij
Dinsdag 10-2-2026
Van Brakellaan 135, 1215PH Hilversum

Binnenkijken bij
Dinsdag 10-2-2026
Banckertlaan 225, 1215RA Hilversum

Binnenkijken bij
Maandag 9-2-2026
Admiraal de Ruyterlaan 65, 1215LW Hilversum

Direct een e-mail ontvangen bij nieuwe meldingen in deze regio?

Meld je dan GRATIS aan voor de Oozo Alert service voor Zeeheldenkwartier

Instellen

Meer nieuws in Zeeheldenkwartier

Weten hoe eenvoudig het is om af te vallen? Zonder pillen en smeersels en zonder je in het zweet te werken!
Kijk op eenvoudig-afvallen.nl

© 2012 - 2026 OOZO.nl - info@oozo.nl - Gegevens verwijderen? | Disclaimer | Privacy statement