Woning Lambert Meliszweg 31 Hoorn Nh

Lambert Meliszweg 31, 1622AG Hoorn Nh

Ontvang updates voor Grote Waal - Buurt 13 00

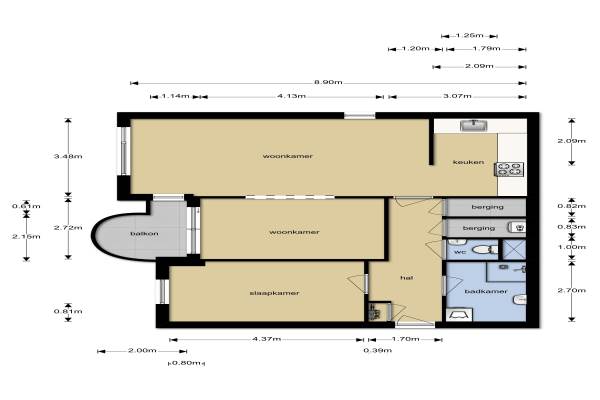
Het adres van deze woning uit 1987 is Lambert Meliszweg 31 te Hoorn Nh. Het pand heeft een oppervlakte van 76m² en heeft 2 kamers kamers waarvan 1 slaapkamers. De geschatte waarde van deze woning is € 267.500.

Bekijk alle woningen in Grote Waal - Buurt 13 00

Gegevens van Galerijflat (appartement)

Bouwjaar
1987
Geschatte waarde
€ 267.500
Oppervlakte
76 m2
Inhoud
229 m3
Aantal kamers
2 kamers
Slaapkamers
1
Badkamers
1 badkamer en 1 apart toilet
Soort bouw
Bestaande bouw
Eigendomssituatie
Volle eigendom
Ligging
Aan water en vrij uitzicht

Voorzieningen in de buurt

Boodschappen0,5 km
Grote supermarkt0,6 km
Cafetaria0,5 km
Restaurant0,6 km
Huisarts0,3 km
Ziekenhuis2,2 km
Kinderdagverblijf0,4 km
BSO0,6 km
Alle voorzieningen in Grote Waal - Buurt 13 00

Binnenkijken bij Lambert Meliszweg 31 te Hoorn Nh

Meer meldingen in deze omgeving

112 melding
Donderdag 19-2-2026 om 10:09
Lambert Meliszweg, 1622AG Hoorn

112 melding
Donderdag 19-2-2026 om 07:42
Astronautenweg, 1622DL Hoorn

112 melding
Dinsdag 17-2-2026 om 07:03
Astronautenweg, 1622DE Hoorn

112 melding
Dinsdag 17-2-2026 om 07:01
Astronautenweg, 1622DH Hoorn

Binnenkijken bij
Maandag 16-2-2026
Astronautenweg 15, 1622DA Hoorn (NH)

112 melding
Zaterdag 14-2-2026 om 17:12
Astronautenweg, Hoorn

112 melding
Zaterdag 14-2-2026 om 09:39
Lambert Meliszweg, 1622AG Hoorn

112 melding
Zaterdag 14-2-2026 om 09:39
Lambert Meliszweg, 1622AG Hoorn

Direct een e-mail ontvangen bij nieuwe meldingen in deze regio?

Meld je dan GRATIS aan voor de Oozo Alert service voor Grote Waal - Buurt 13 00

Instellen

Meer nieuws in Grote Waal - Buurt 13 00

Weten hoe eenvoudig het is om af te vallen? Zonder pillen en smeersels en zonder je in het zweet te werken!
Kijk op eenvoudig-afvallen.nl

© 2012 - 2026 OOZO.nl - info@oozo.nl - Gegevens verwijderen? | Disclaimer | Privacy statement