Woning Diepenbrockstraat 12 KERKRADE

Diepenbrockstraat 12, 6461AB KERKRADE

Ontvang updates voor Kerkrade-Centrum

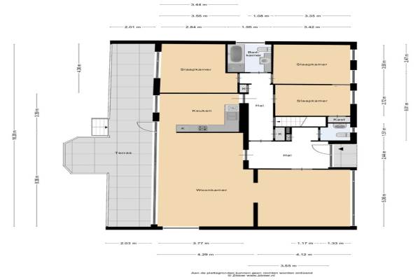
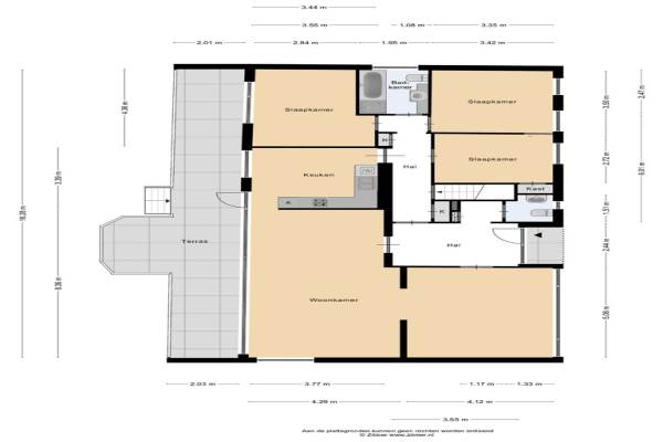
Het adres van deze woning uit 1957 is Diepenbrockstraat 12 te KERKRADE. Het pand heeft een oppervlakte van 136m² en een perceeloppervlakte van 791m² en heeft 8 kamers kamers waarvan 3 slaapkamers. De geschatte waarde van deze woning is € 449.000.

Bekijk alle woningen in Kerkrade-Centrum

Gegevens van Bungalow

Bouwjaar
1957
Geschatte waarde
€ 449.000
Oppervlakte
136 m2
Inhoud
852 m3
Aantal kamers
8 kamers
Slaapkamers
3
Tuin
Tuin

Voorzieningen in de buurt

Boodschappen0,3 km
Grote supermarkt0,6 km
Cafetaria0,3 km
Restaurant0,3 km
Huisarts0,5 km
Ziekenhuis0,7 km
Kinderdagverblijf0,6 km
BSO0,6 km
Alle voorzieningen in Kerkrade-Centrum

Binnenkijken bij Diepenbrockstraat 12 te KERKRADE

Meer meldingen in deze omgeving

Binnenkijken bij
Vrijdag 8-5-2026
Rolduckerstraat 28, 6461VM Kerkrade

Binnenkijken bij
Vrijdag 8-5-2026
O.L.Vrouwestraat 57C, 6461BN Kerkrade

Binnenkijken bij
Vrijdag 8-5-2026
Vivaldistraat 35, 6461NB Kerkrade

112 melding
Donderdag 7-5-2026 om 02:31
Einderstraat, Kerkrade

Binnenkijken bij
Dinsdag 5-5-2026
Hoofdstraat 27B, 6461CM Kerkrade

Binnenkijken bij
Dinsdag 5-5-2026
Nullanderstraat 52, 6461GD Kerkrade

Binnenkijken bij
Dinsdag 5-5-2026
Wilhelminastraat 52, 6461BJ Kerkrade

Binnenkijken bij
Dinsdag 5-5-2026
Markt 63, 6461ED Kerkrade

Direct een e-mail ontvangen bij nieuwe meldingen in deze regio?

Meld je dan GRATIS aan voor de Oozo Alert service voor Kerkrade-Centrum

Instellen

Meer nieuws in Kerkrade-Centrum

Weten hoe eenvoudig het is om af te vallen? Zonder pillen en smeersels en zonder je in het zweet te werken!
Kijk op eenvoudig-afvallen.nl

© 2012 - 2026 OOZO.nl - info@oozo.nl - Gegevens verwijderen? | Disclaimer | Privacy statement