Woning Jarigsmastins 12 Leeuwarden

Jarigsmastins 12, 8925EG Leeuwarden

Ontvang updates voor Camminghaburen-Midden

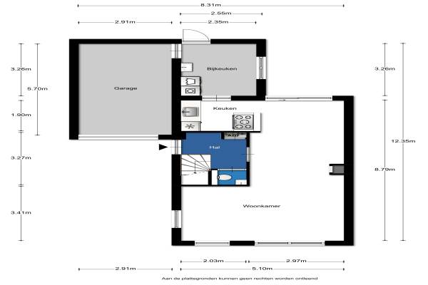
Het adres van deze woning uit 1988 is Jarigsmastins 12 te Leeuwarden. Het pand heeft een oppervlakte van 112m² en een perceeloppervlakte van 271m² en heeft 5 kamers kamers waarvan 4 slaapkamers. De geschatte waarde van deze woning is € 215.000.

Bekijk alle woningen in Camminghaburen-Midden

Gegevens van Eengezinswoning, eindwoning

Bouwjaar
1988
Geschatte waarde
€ 215.000
Oppervlakte
112 m2
Inhoud
472 m3
Aantal kamers
5 kamers
Slaapkamers
4
Badkamers
1 apart toilet
Soort bouw
Bestaande bouw
Eigendomssituatie
Volle eigendom
Ligging
Aan rustige weg en in woonwijk
Tuin
Achtertuin en voortuin
Achtertuin
80 m² (12,5m diep en 80m breed)

Voorzieningen in de buurt

Binnenkijken bij Jarigsmastins 12 te Leeuwarden

Meer meldingen in deze omgeving

Binnenkijken bij
Dinsdag 16-12-2025
Carolinenburg 45, 8925CB Leeuwarden

Nieuw bedrijf
December 2025
Lieuwenburg 80, 8925CL Leeuwarden

Binnenkijken bij
Vrijdag 5-12-2025
Schatzenburg 25, 8926KD Leeuwarden

Nieuw bedrijf
December 2025
Taniaburg 116, 8926LZ Leeuwarden

Nieuw bedrijf
November 2025
Carolinenburg 6, 8925CC Leeuwarden

Nieuw bedrijf
November 2025
Kippenburg 23, 8926KX Leeuwarden

Binnenkijken bij
Woensdag 26-11-2025
Keimpemastins 16, 8925JR Leeuwarden

Binnenkijken bij
Dinsdag 25-11-2025
Kippenburg 12, 8926KX Leeuwarden

Direct een e-mail ontvangen bij nieuwe meldingen in deze regio?

Meld je dan GRATIS aan voor de Oozo Alert service voor Camminghaburen-Midden

Instellen

Meer nieuws in Camminghaburen-Midden

Weten hoe eenvoudig het is om af te vallen? Zonder pillen en smeersels en zonder je in het zweet te werken!
Kijk op eenvoudig-afvallen.nl

© 2012 - 2025 OOZO.nl - info@oozo.nl - Gegevens verwijderen? | Disclaimer | Privacy statement