Woning Appartement 14 Stiens

Appartement 14, 9051 Stiens

Ontvang updates voor Stiens

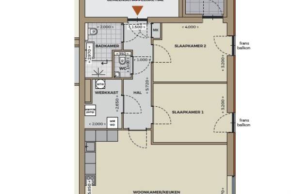
Het adres van deze woning uit 2025 is Appartement 14 te Stiens. Het pand heeft een oppervlakte van 89m² en heeft 4 kamers kamers waarvan 2 slaapkamers. De geschatte waarde van deze woning is € 409.875.

Bekijk alle woningen in Stiens

Gegevens van Galerijflat (appartement)

Bouwjaar
2025
Geschatte waarde
€ 409.875
Oppervlakte
89 m2
Inhoud
280 m3
Aantal kamers
4 kamers
Slaapkamers
2
Badkamers
1 badkamer en 1 apart toilet
Soort bouw
Nieuwbouw
Ligging
In centrum

Voorzieningen in de buurt

Binnenkijken bij Appartement 14 te Stiens

Meer meldingen in deze omgeving

Binnenkijken bij
Donderdag 12-3-2026
Moundyk 6, 9051AH Stiens

Faillissement
Woensdag 11-3-2026
It Achterbosk 19, 9051CS Stiens

Nieuw bedrijf
Maart 2026
Ungastins 15, 9051GC Stiens

Binnenlands nieuws
Zondag 8-3-2026
Stiens

Binnenkijken bij
Zaterdag 7-3-2026
Gysbert Japicxstrjitte 47, 9051EP Stiens

112 melding
Donderdag 5-3-2026 om 11:14
Truerderdyk, Stiens

Binnenkijken bij
Donderdag 5-3-2026
Hellasstrjitte 45, 9051KH Stiens

Nieuw bedrijf
Maart 2026
Finnedyk 2a, 9051HW Stiens

Direct een e-mail ontvangen bij nieuwe meldingen in deze regio?

Meld je dan GRATIS aan voor de Oozo Alert service voor Stiens

Instellen

Meer nieuws in Stiens

Weten hoe eenvoudig het is om af te vallen? Zonder pillen en smeersels en zonder je in het zweet te werken!
Kijk op eenvoudig-afvallen.nl

© 2012 - 2026 OOZO.nl - info@oozo.nl - Gegevens verwijderen? | Disclaimer | Privacy statement