Woning De Hôven 10 Stiens

De Hôven 10, 9051MV Stiens

Ontvang updates voor Stiens

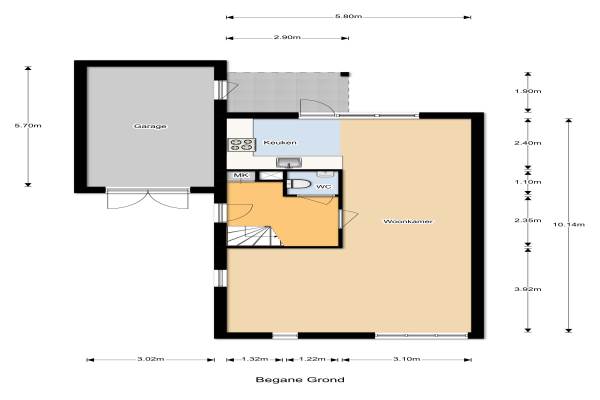
Het adres van deze woning uit 2006 is De Hôven 10 te Stiens. Het pand heeft een oppervlakte van 127m² en een perceeloppervlakte van 274m² en heeft 5 kamers kamers waarvan 3 slaapkamers. De geschatte waarde van deze woning is € 249.500.

Bekijk alle woningen in Stiens

Gegevens van Eengezinswoning, 2-onder-1-kapwoning

Bouwjaar
2006
Geschatte waarde
€ 249.500
Oppervlakte
127 m2
Inhoud
534 m3
Aantal kamers
5 kamers
Slaapkamers
3
Badkamers
1 badkamer en 1 apart toilet
Soort bouw
Bestaande bouw
Eigendomssituatie
Volle eigendom
Ligging
In woonwijk
Tuin
Achtertuin en voortuin
Achtertuin
140 m² (14m diep en 10m breed)

Voorzieningen in de buurt

Binnenkijken bij De Hôven 10 te Stiens

Meer meldingen in deze omgeving

Nieuw bedrijf
December 2025
Uniawei 37, 9051BC Stiens

Nieuw bedrijf
December 2025
Uniawei 37, 9051BC Stiens

112 melding
Zondag 28-12-2025 om 16:00
Seedûker, 9051VB Stiens

Binnenkijken bij
Woensdag 24-12-2025
Aldlânsdyk 49, 9051DC Stiens

Binnenkijken bij
Zaterdag 20-12-2025
Cedrushôf 5, 9051LN Stiens

Binnenkijken bij
Zaterdag 20-12-2025
Grovestins 14, 9051GZ Stiens

112 melding
Zaterdag 13-12-2025 om 15:46
Petterhústerdyk, Stiens

112 melding
Vrijdag 12-12-2025 om 10:13
Seefugel, 9051 Stiens

Direct een e-mail ontvangen bij nieuwe meldingen in deze regio?

Meld je dan GRATIS aan voor de Oozo Alert service voor Stiens

Instellen

Meer nieuws in Stiens

Weten hoe eenvoudig het is om af te vallen? Zonder pillen en smeersels en zonder je in het zweet te werken!
Kijk op eenvoudig-afvallen.nl

© 2012 - 2025 OOZO.nl - info@oozo.nl - Gegevens verwijderen? | Disclaimer | Privacy statement