Woning Laan van Rustenburg 19 Voorburg

Laan van Rustenburg 19, 2271XS Voorburg

Ontvang updates voor Voorburg Oud

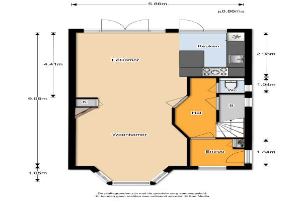
Het adres van deze woning uit 1924 is Laan van Rustenburg 19 te Voorburg. Het pand heeft een oppervlakte van 130m² en een perceeloppervlakte van 312m² en heeft 6 kamers kamers waarvan 4 slaapkamers. De geschatte waarde van deze woning is € 585.000.

Bekijk alle woningen in Voorburg Oud

Gegevens van Herenhuis, hoekwoning

Bouwjaar
1924
Geschatte waarde
€ 585.000
Oppervlakte
130 m2
Inhoud
480 m3
Aantal kamers
6 kamers
Slaapkamers
4
Badkamers
1 badkamer en 2 aparte toiletten
Soort bouw
Bestaande bouw
Eigendomssituatie
Volle eigendom
Ligging
Aan rustige weg, in centrum en in woonwijk
Tuin
Achtertuin, voortuin en zijtuin
Achtertuin
140 m² (16,5m diep en 8,5m breed)

Voorzieningen in de buurt

Boodschappen0,3 km
Grote supermarkt0,4 km
Cafetaria0,3 km
Restaurant0,2 km
Huisarts0,3 km
Ziekenhuis0,8 km
Kinderdagverblijf0,5 km
BSO0,6 km
Alle voorzieningen in Voorburg Oud

Binnenkijken bij Laan van Rustenburg 19 te Voorburg

Meer meldingen in deze omgeving

112 melding
Zondag 22-3-2026 om 08:50
Mauritsstraat, Voorburg

112 melding
Zondag 22-3-2026 om 08:06
Laan van Heldenburg, Voorburg

112 melding
Zaterdag 21-3-2026 om 13:59
Herenstraat, Voorburg

112 melding
Zaterdag 21-3-2026 om 13:59
Herenstraat, Voorburg

112 melding
Vrijdag 20-3-2026 om 23:41
Noordenburglaan, Voorburg

112 melding
Vrijdag 20-3-2026 om 14:13
Van Wassenaer Hoffmanplein, Voorburg

Binnenkijken bij
Donderdag 19-3-2026
Laan van Heldenburg 33, 2271AS Voorburg

Binnenkijken bij
Donderdag 19-3-2026
Parkweg 74A, 2271AM Voorburg

Direct een e-mail ontvangen bij nieuwe meldingen in deze regio?

Meld je dan GRATIS aan voor de Oozo Alert service voor Voorburg Oud

Instellen

Meer nieuws in Voorburg Oud

Weten hoe eenvoudig het is om af te vallen? Zonder pillen en smeersels en zonder je in het zweet te werken!
Kijk op eenvoudig-afvallen.nl

© 2012 - 2026 OOZO.nl - info@oozo.nl - Gegevens verwijderen? | Disclaimer | Privacy statement