Woning Doctor Blookerstraat 7 Voorburg

Doctor Blookerstraat 7, 2271VK Voorburg

Ontvang updates voor Voorburg Oud

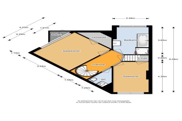
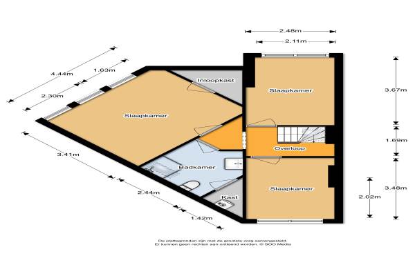
Het adres van deze woning uit 1921 is Doctor Blookerstraat 7 te Voorburg. Het pand heeft een oppervlakte van 151m² en een perceeloppervlakte van 204m² en heeft 6 kamers kamers waarvan 5 slaapkamers. De geschatte waarde van deze woning is € 560.000.

Bekijk alle woningen in Voorburg Oud

Gegevens van Herenhuis, tussenwoning

Bouwjaar
1921
Geschatte waarde
€ 560.000
Oppervlakte
151 m2
Inhoud
515 m3
Aantal kamers
6 kamers
Slaapkamers
5
Badkamers
2 badkamers en 2 aparte toiletten
Soort bouw
Bestaande bouw
Eigendomssituatie
Volle eigendom
Ligging
Aan rustige weg, in woonwijk en vrij uitzicht
Tuin
Achtertuin
Achtertuin
143 m² (13,6m diep en 10,5m breed)

Voorzieningen in de buurt

Boodschappen0,3 km
Grote supermarkt0,4 km
Cafetaria0,3 km
Restaurant0,2 km
Huisarts0,3 km
Ziekenhuis0,8 km
Kinderdagverblijf0,5 km
BSO0,6 km
Alle voorzieningen in Voorburg Oud

Binnenkijken bij Doctor Blookerstraat 7 te Voorburg

Meer meldingen in deze omgeving

112 melding
Vrijdag 30-1-2026 om 11:38
Sionsstraat, Voorburg

Binnenkijken bij
Vrijdag 30-1-2026
Emmastraat 34, 2271SR Voorburg

Binnenkijken bij
Vrijdag 30-1-2026
Emmastraat 23, 2271SN Voorburg

112 melding
Donderdag 29-1-2026 om 07:50
Parkweg, Voorburg

112 melding
Dinsdag 27-1-2026 om 20:37
Vondelstraat, Voorburg

112 melding
Dinsdag 27-1-2026 om 12:06
Parkweg, Voorburg

Nieuw bedrijf
Januari 2026
Groen van Prinstererlaan 38, 2271EN Voorburg

112 melding
Donderdag 22-1-2026 om 03:25
Parkweg, Voorburg

Direct een e-mail ontvangen bij nieuwe meldingen in deze regio?

Meld je dan GRATIS aan voor de Oozo Alert service voor Voorburg Oud

Instellen

Meer nieuws in Voorburg Oud

Weten hoe eenvoudig het is om af te vallen? Zonder pillen en smeersels en zonder je in het zweet te werken!
Kijk op eenvoudig-afvallen.nl

© 2012 - 2026 OOZO.nl - info@oozo.nl - Gegevens verwijderen? | Disclaimer | Privacy statement