Woning Loolaan 96 Voorburg

Loolaan 96, 2271TP Voorburg

Ontvang updates voor Voorburg Oud

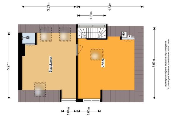
Het adres van deze woning uit 1927 is Loolaan 96 te Voorburg. Het pand heeft een oppervlakte van 151m² en een perceeloppervlakte van 236m² en heeft 5 kamers kamers waarvan 4 slaapkamers. De geschatte waarde van deze woning is € 650.000.

Bekijk alle woningen in Voorburg Oud

Gegevens van Herenhuis, eindwoning

Bouwjaar
1927
Geschatte waarde
€ 650.000
Oppervlakte
151 m2
Inhoud
575 m3
Aantal kamers
5 kamers
Slaapkamers
4
Badkamers
1 badkamer en 2 aparte toiletten
Soort bouw
Bestaande bouw
Eigendomssituatie
Volle eigendom
Tuin
Achtertuin en voortuin
Achtertuin
10 m² (10m diep en 1m breed)

Voorzieningen in de buurt

Boodschappen0,3 km
Grote supermarkt0,4 km
Cafetaria0,3 km
Restaurant0,2 km
Huisarts0,3 km
Ziekenhuis0,8 km
Kinderdagverblijf0,5 km
BSO0,6 km
Alle voorzieningen in Voorburg Oud

Binnenkijken bij Loolaan 96 te Voorburg

Meer meldingen in deze omgeving

Binnenkijken bij
Zondag 28-12-2025
Laan van Haagvliet 22, 2271XP Voorburg

112 melding
Zondag 28-12-2025 om 00:32
Oranje Nassaustraat, Voorburg

112 melding
Zaterdag 27-12-2025 om 21:49
Oostvlietstraat, Voorburg

112 melding
Zaterdag 27-12-2025 om 13:47
Vijverhof, Voorburg

112 melding
Zaterdag 27-12-2025 om 12:55
Herenstraat, Voorburg

112 melding
Vrijdag 26-12-2025 om 09:22
Van Wassenaer Hoffmanplein, Voorburg

Nieuw bedrijf
December 2025
Oosteinde 89, 2271ED Voorburg

Nieuw bedrijf
December 2025
Oosteinde 89, 2271ED Voorburg

Direct een e-mail ontvangen bij nieuwe meldingen in deze regio?

Meld je dan GRATIS aan voor de Oozo Alert service voor Voorburg Oud

Instellen

Meer nieuws in Voorburg Oud

Weten hoe eenvoudig het is om af te vallen? Zonder pillen en smeersels en zonder je in het zweet te werken!
Kijk op eenvoudig-afvallen.nl

© 2012 - 2025 OOZO.nl - info@oozo.nl - Gegevens verwijderen? | Disclaimer | Privacy statement