Woning Jol 1338 Lelystad

Jol 13-38, 8243EH Lelystad

Ontvang updates voor Bedrijventerrein Jol

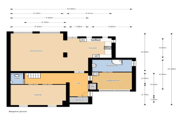
Het adres van deze woning uit 1980 is Jol 1338 te Lelystad. Het pand heeft een oppervlakte van 150m² en een perceeloppervlakte van 537m² en heeft 5 kamers kamers waarvan 4 slaapkamers. De geschatte waarde van deze woning is € 250.000.

Bekijk alle woningen in Bedrijventerrein Jol

Gegevens van Eengezinswoning, 2-onder-1-kapwoning

Bouwjaar
1980
Geschatte waarde
€ 250.000
Oppervlakte
150 m2
Inhoud
450 m3
Aantal kamers
5 kamers
Slaapkamers
4
Badkamers
2 badkamers en 1 apart toilet
Soort bouw
Bestaande bouw
Eigendomssituatie
Volle eigendom
Ligging
Aan rustige weg, in woonwijk, vrij uitzicht en beschutte ligging
Tuin
Achtertuin, voortuin en zijtuin
Achtertuin
255 m² (15m diep en 17m breed)

Voorzieningen in de buurt

Boodschappen0,5 km
Grote supermarkt0,5 km
Cafetaria0,6 km
Restaurant0,6 km
Huisarts0,6 km
Ziekenhuis2,7 km
Kinderdagverblijf0,6 km
BSO0,9 km
Alle voorzieningen in Bedrijventerrein Jol

Binnenkijken bij Jol 1338 te Lelystad

Meer meldingen in deze omgeving

112 melding
Dinsdag 28-10-2025 om 11:44
Jol, 8243EH Lelystad

112 melding
Dinsdag 28-10-2025 om 11:44
Jol, 8243EH Lelystad

112 melding
Zaterdag 25-10-2025 om 16:54
Jol, 8243EH Lelystad

112 melding
Zaterdag 25-10-2025 om 16:54
Jol, 8243EH Lelystad

112 melding
Dinsdag 21-10-2025 om 14:11
Jol, 8243ED Lelystad

112 melding
Dinsdag 30-9-2025 om 13:49
Jol, 8243ED Lelystad

112 melding
Dinsdag 30-9-2025 om 13:49
Jol, 8243ED Lelystad

112 melding
Maandag 28-7-2025 om 11:24
Jol, 8243ED Lelystad

Direct een e-mail ontvangen bij nieuwe meldingen in deze regio?

Meld je dan GRATIS aan voor de Oozo Alert service voor Bedrijventerrein Jol

Instellen

Meer nieuws in Bedrijventerrein Jol

Weten hoe eenvoudig het is om af te vallen? Zonder pillen en smeersels en zonder je in het zweet te werken!
Kijk op eenvoudig-afvallen.nl

© 2012 - 2025 OOZO.nl - info@oozo.nl - Gegevens verwijderen? | Disclaimer | Privacy statement